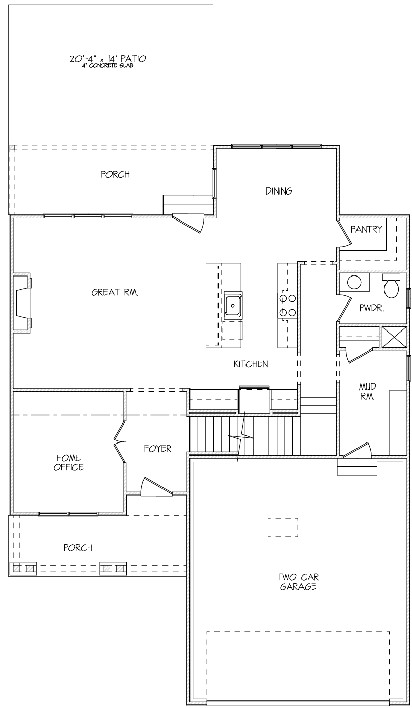
convert this floor plan into a realistic isometric 3d view of a full house show the space from an elevated angle with furniture walls and details visible convert this floor plan into a realistic isometric 3d view show the space from a top down view with walls furniture and details visible carpet only on the steps light wood flooring everywhere else white cabinetry and white countertops desk in office white windows and white trim concrete floor in the garage with a car and suv inside bench and hooks in the mudroom only on one wall living room has fireplace add rugs in the living room office and dining room make stairs in foyer go down and the stairs in the kitchen go up no door in hallway behind the kitchen wall add furniture to the porch and patio use the same furniture as shows on the plan do not change the orientation of the floorplan