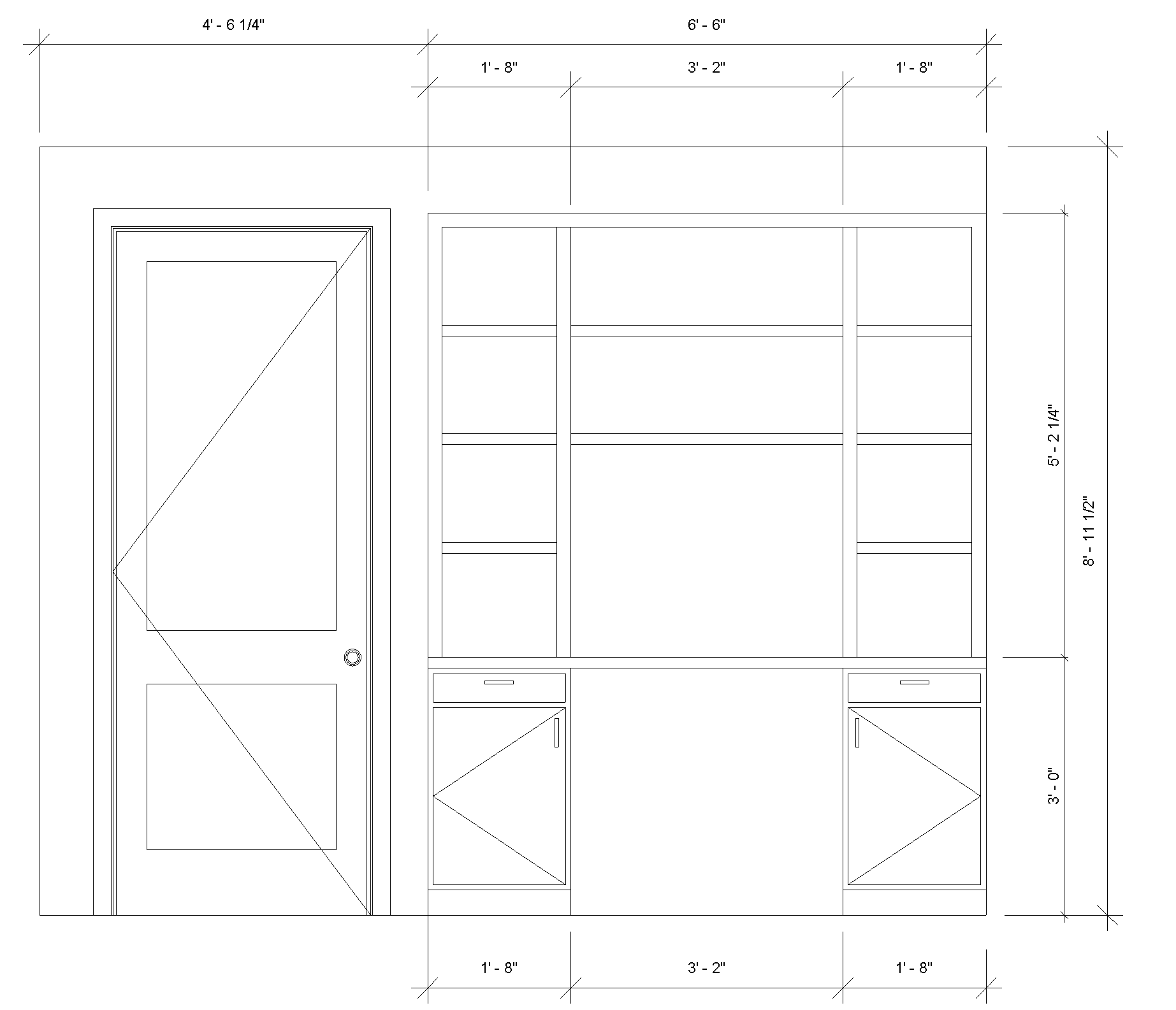
modern mediterranean matte raw walnut desk cabinetry in builtin cream textured wallpaper open shelving unit with back lit ivory plastered walls cream limestone flooring