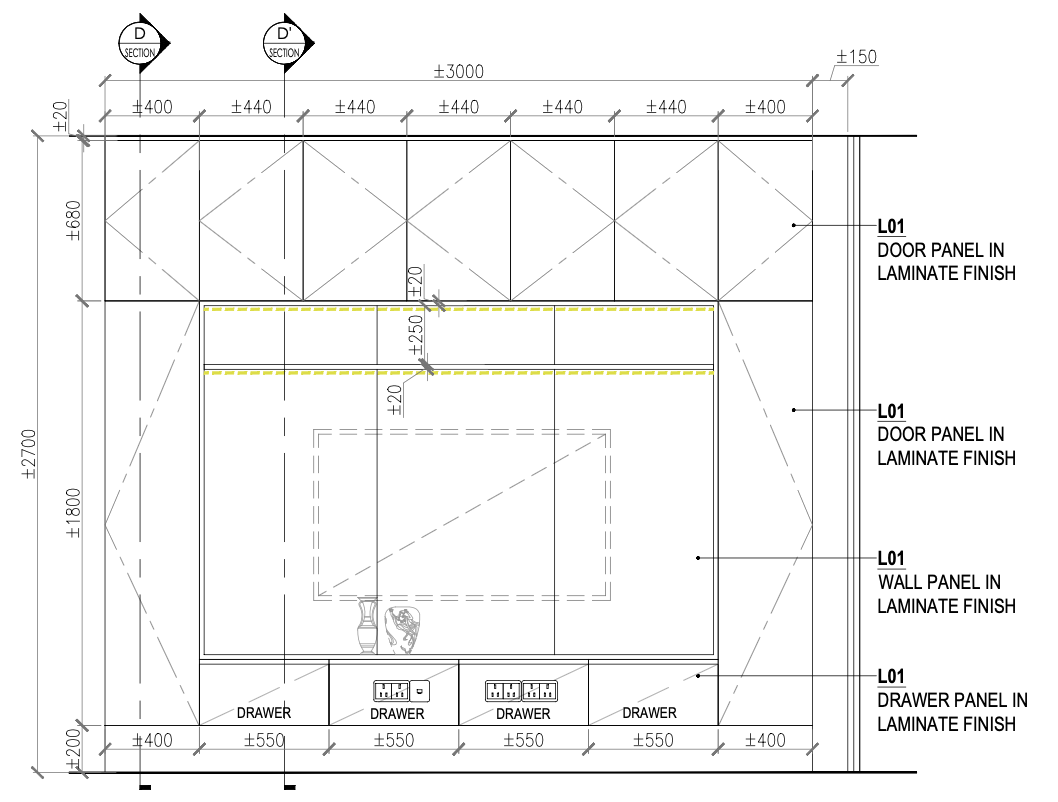
follow elevation design straightly render in white