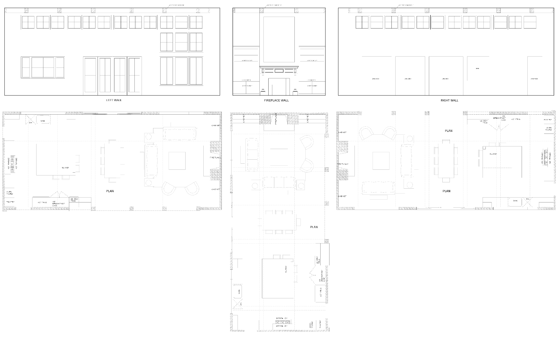
let s look at these three floor plans and three corresponding elevations that match the floor plans the corresponding wall build model of this room so that it is a lifelike picture looking towards the fireplace wall showing the windows accurately and the archways accurately with the coffered beam ceiling proportionate to what the drawings are showing let s furnish the space and make it look beautiful like a place everybody wants to spend time in