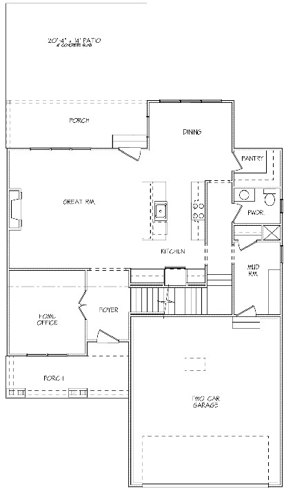
convert this floor plan into a realistic isometric 3d view of a full house show the space from an elevated angle with furniture walls and details visible convert this floor plan into a realistic isometric 3d view show the space from a top down view with walls furniture and details visible carpet only on the steps wood flooring everywhere else light cabinetry and white countertops desk in office white windows and white trim use the same furniture as shows on the plan do not change the orientation of the floorplan