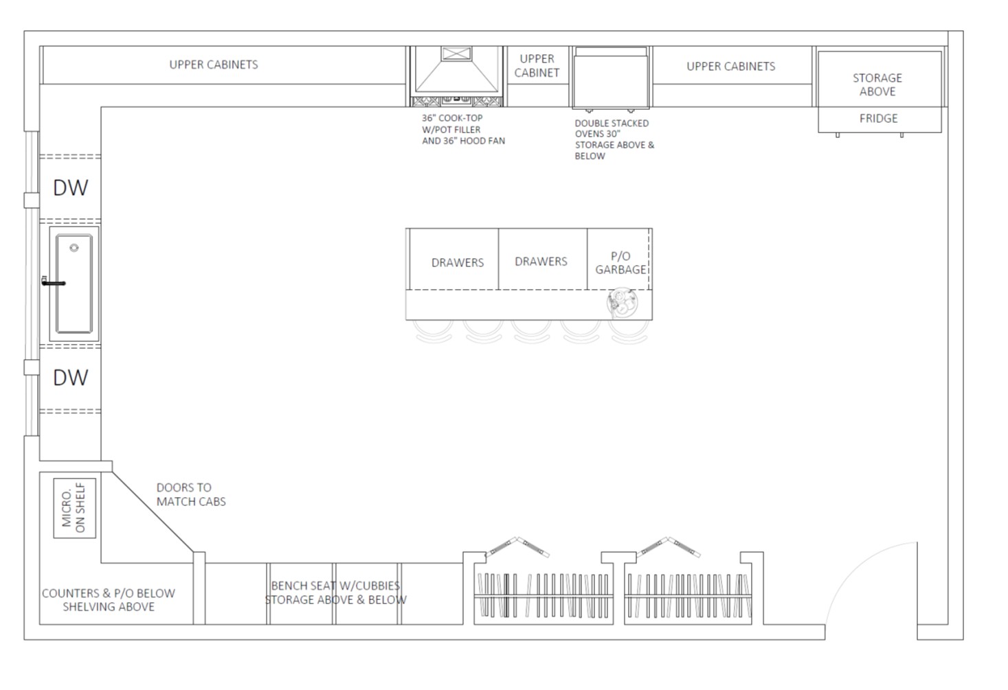
convert this floor plan into a realistic isometric 3d view of a full house show the space from an elevated angle with furniture walls and details visible use the last rendering but the wall with the sink has two windows beside the large window and no cabinets on that wall make the cabinets a light oak use the same furniture as shows on the plan do not change the orientation of the floorplan