archsynth
Sign Up
Open main menu
Image to 3d model
Compare
Testimonials
Contact us
Log in
→
Signup
Archsynth generation
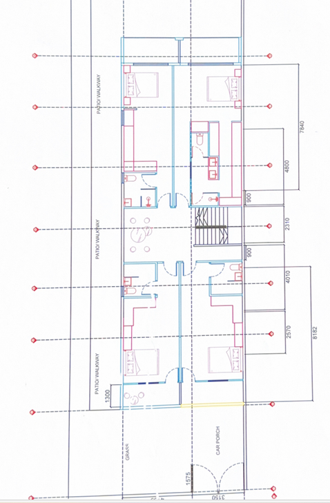
Input image
Copy Prompt
this is the plan of a singapore landed home give me some 3d render view of the living room kitchen and foyer architecture
3D Optimized
strength 75
seed 10
Start Creating Renders Now
Related Posts
Start Creating Renders Now
View more