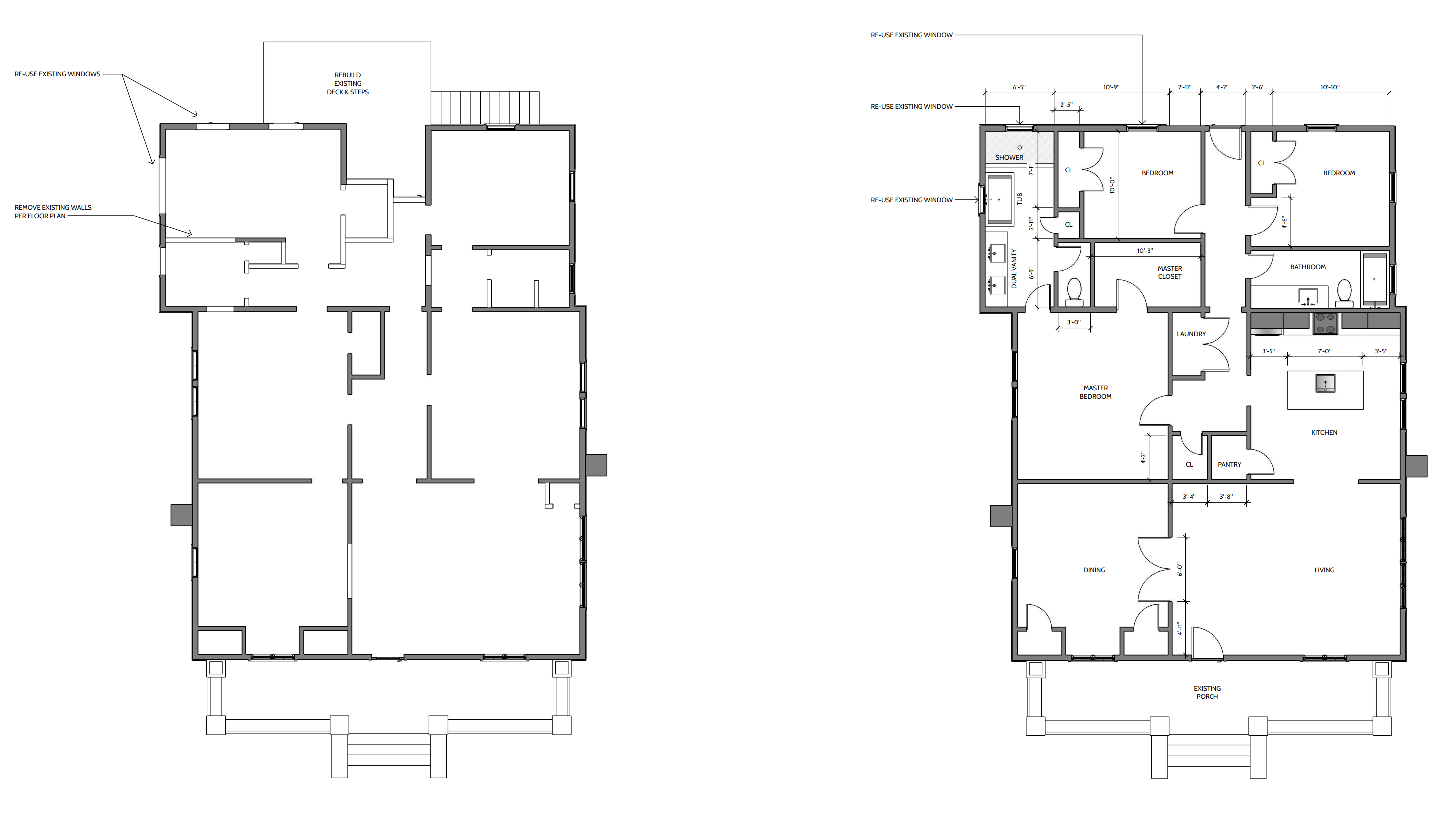
convert this architectural construction floor plan into a dwg drawing output style pure black line architectural diagram white background thick exterior walls thin interior partition walls keep door swings and stair arrows keep window openings keep all construction information including framing notes joist schedules structural callouts section markers header sizes code notes callout bubbles gridlines and scale bars keep clean architectural dimensions along the exterior walls and major rooms typography simple architectural sans serif centered room labels dimension text outside walls output as dwg floor plan