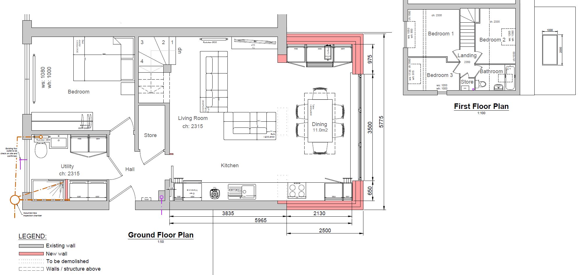
convert this floor plan into a modern isometric 3d view of a full house show the space from an elevated angle with furniture walls and details visible create an isometric architectural view from the provided autocad drawing the drawing contains two plans ground floor plan scale 1 50 and first floor plan scale 1 100 important requirements do not change the layout in any way all walls rooms furniture doors and window openings must remain exactly as shown in the original plan preserve the exact position dimensions and arrangement of all elements strictly convert the drawing to an isometric realistic modern projection only do not redesign infer or change position of any elements use the same furniture as shows on the plan do not change the orientation of the floorplan