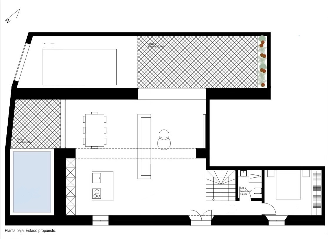
convert this floor plan into a realistic isometric 3d view of a full house show the space from an elevated angle with furniture walls and details visible luxury modern villa terrace with pool isometric top view render mediterranean style white walls natural stone floor sun loungers greenery soft sunlight realistic water reflections high end outdoor design architectural visualization warm and inviting atmosphere use the same furniture as shows on the plan do not change the orientation of the floorplan