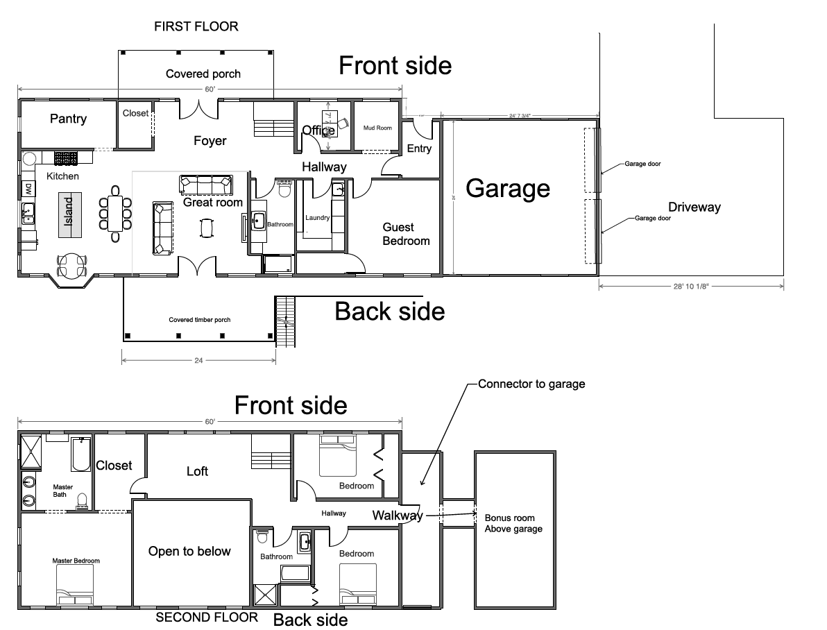
show front elevation view 60 long 2 story home with a nice central cupola standing seam roof with minimal pitch nice symmetrical front porch board and batten vinyl siding with cedar accents 2 car garage off left side