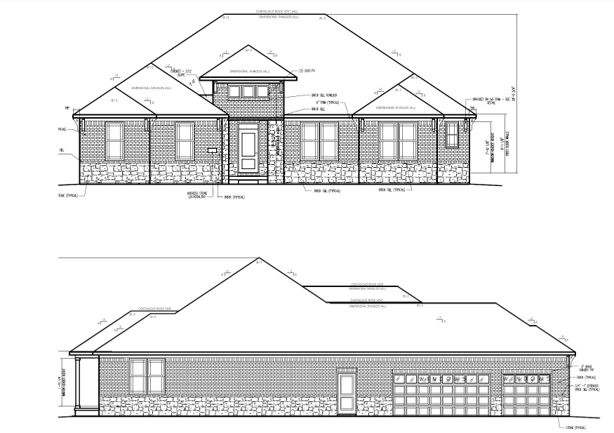
convert this floor plan into a realistic isometric 3d view of a full house show the space from an elevated angle with furniture walls and details visible turn these 2d elevations of the left and front of a house into an isometric drawing showing the exterior only keep the garage on the left along with all bays service doors and windows add the single garage bay door use the same furniture as shows on the plan do not change the orientation of the floorplan