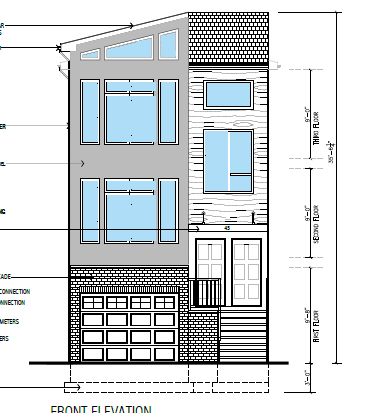
generate a realistic rendering with a modern aesthetic include all elements from the elevation including two front doors