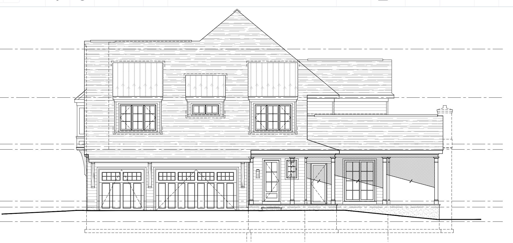
use the provided elevation as the base image keep the elevation exactly the same do not crop zoom resize or reconfigure the image in any way maintain the original structure proportions rooflines dormers and all architectural elements exactly as shown do not redesign reinterpret or add any new elements critical restrictions do not add any new roofs overhangs awnings or architectural features anywhere on the elevation do not add a shed roof or any covering over the garage doors do not change the roof massing in any way do not apply siding or any wall material to roof surfaces all roof planes must remain roofing material only material updates main siding clean white siding only on vertical wall surfaces main roof black asphalt shingles on all primary roof planes dormer shed roofs only black or charcoal standing seam metal roofing garage doors white all windows and doors black wood corbels keep natural wood tone do not paint rendering instructions make the elevation a high end photorealistic architectural rendering with realistic lighting shadows and material textures keep the background simple and natural do not alter the design