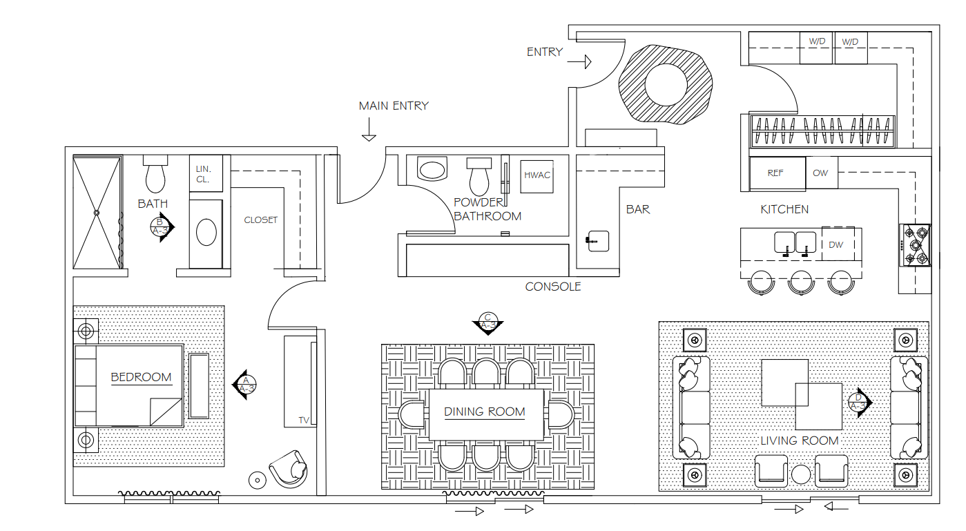
exterior shot archsynth render prompt create a high resolution realistic render of the provided floor plan inspired by the mood board maintain the exact layout proportions walls openings furniture placement and architectural details exactly as shown do not modify remove or add any elements apply dark natural wood flooring throughout the entire space rich walnut tone matte finish subtle grain texture flooring should feel warm and elegant consistent across all rooms do not display any room names labels dimensions elevation markers or symbols remove all text annotations and drafting marks so the plan reads as a clean presentation rendering add soft realistic shading to create depth subtle wall shadows to define spatial boundaries light gradient variation to enhance dimensionality soft ambient light effect for a warm atmosphere gentle shadowing beneath furniture for realism style should feel cohesive with the mood board warm refined slightly contemporary and natural use balanced lighting and realistic material textures but keep all existing architectural details exactly the same camera view top down architectural plan view orthographic not perspective high detail presentation quality soft natural lighting realistic materials clean composition if you want you can send the mood board colors and i can fine tune the wood tone to match bette