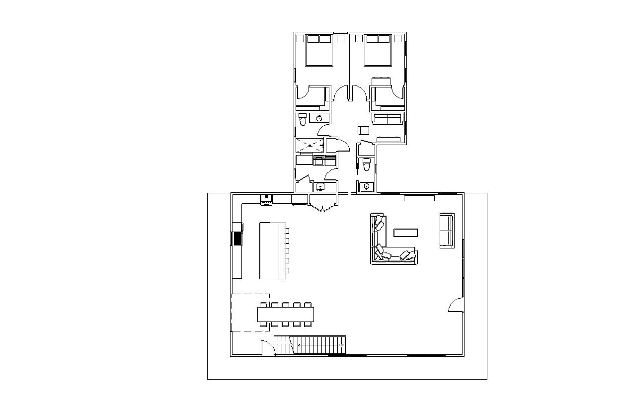
render a 2d architectural floor plan in a realistic high end 3d top down style use warm neutral tones soft shadows and smooth ambient lighting apply subtle depth beveling and material definition to walls flooring and furniture use lightly textured surfaces for carpet tile and wood show beds sofas kitchen cabinetry appliances dining table and d cor with clean modern geometry and a soft matte finish keep wall thickness consistent and furnishings proportional maintain a gentle gradient background and minimal contrast for a premium elegant look match the style softness materials lighting and overall realism of the reference image