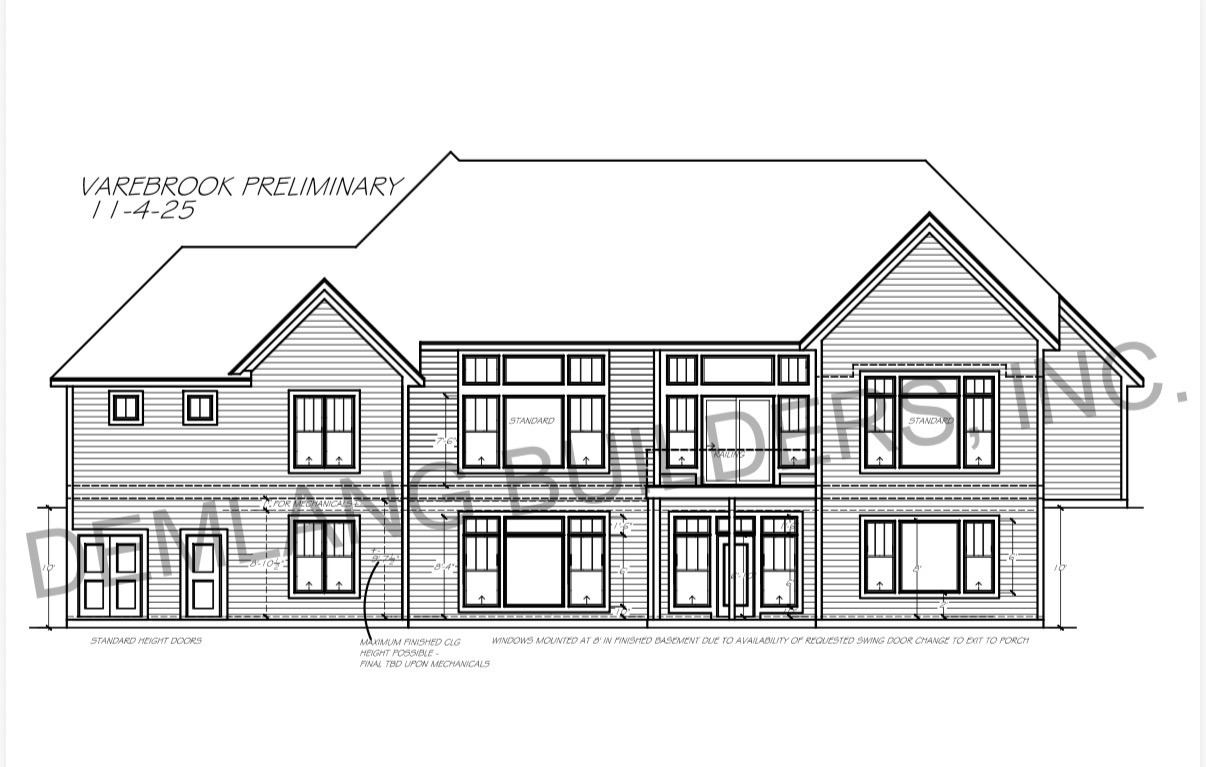
rear view of house cream colored vertical batten siding black windows elegant updated add a pool with built in spa within the rectangle pool add a cedar gazebo with curtains no stone or brick on the house add landscaping and outdoor furniture zoom out a little