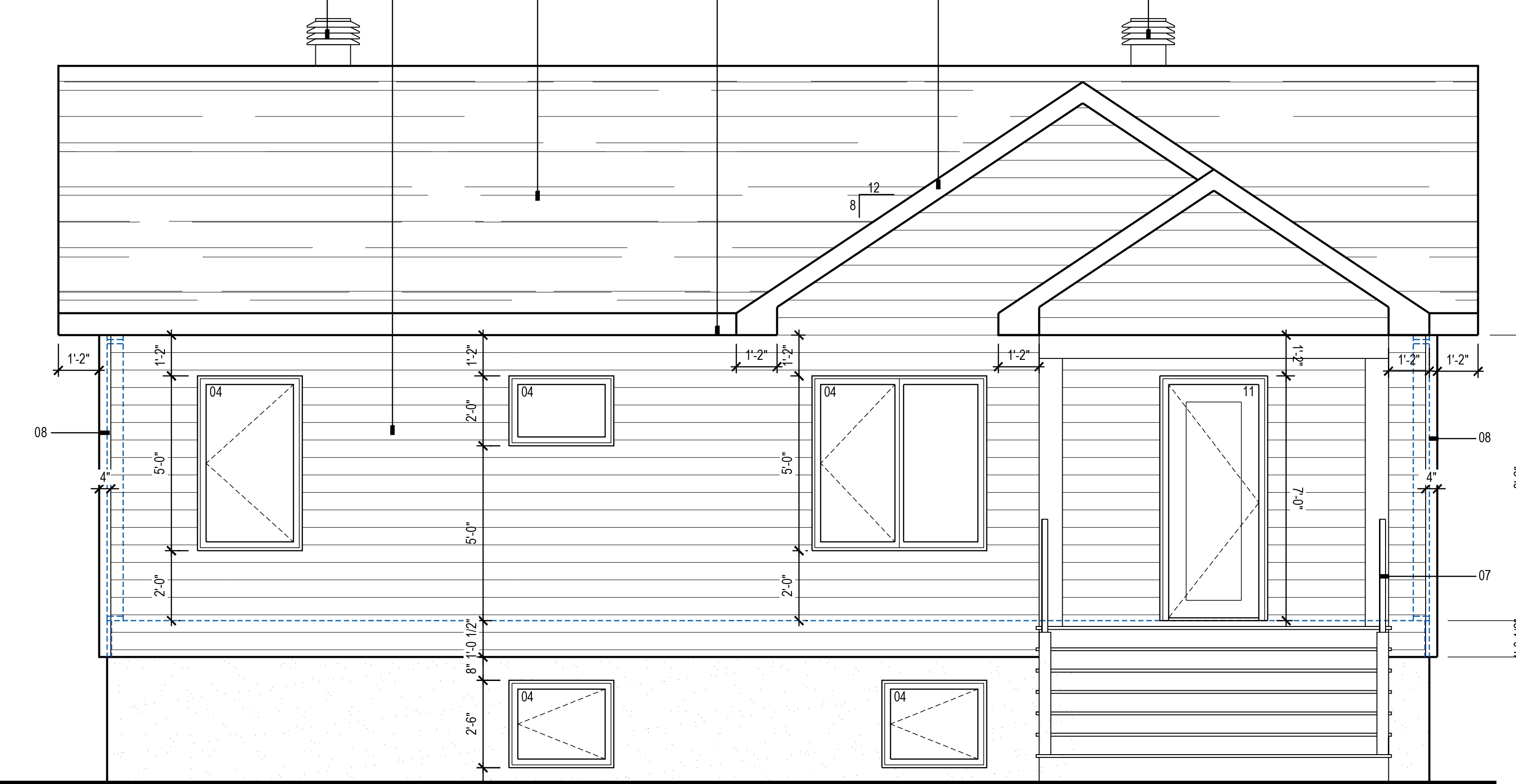
using the provided architectural elevations as reference generate a realistic 3d exterior rendering of the residence while strictly preserving the original geometry volumes proportions roof slopes and window door placements the building volumetry must remain exactly the same do not modify the structure in any way apply horizontal clapboard siding clin on the side elevations left and right facades for the front fa ade propose a clean and refined modern exterior design use a combination of contemporary materials and textures while keeping a cohesive and high end residential look let the ai suggest a modern material palette important the foundation must remain a standard concrete color light grey look do not change or cover the foundation with other materials lighting ambiance daytime lighting with soft natural shadows neutral to slightly warm tone environment add realistic landscaping grass trees natural terrain include a simple driveway and minimal surroundings rendering style ultra realistic architectural visualization high detail textures and sharp image quality do not modify the building structure only enhance materials textures and environment make the front fa ade visually striking and architecturally bold while remaining realistic and buildable