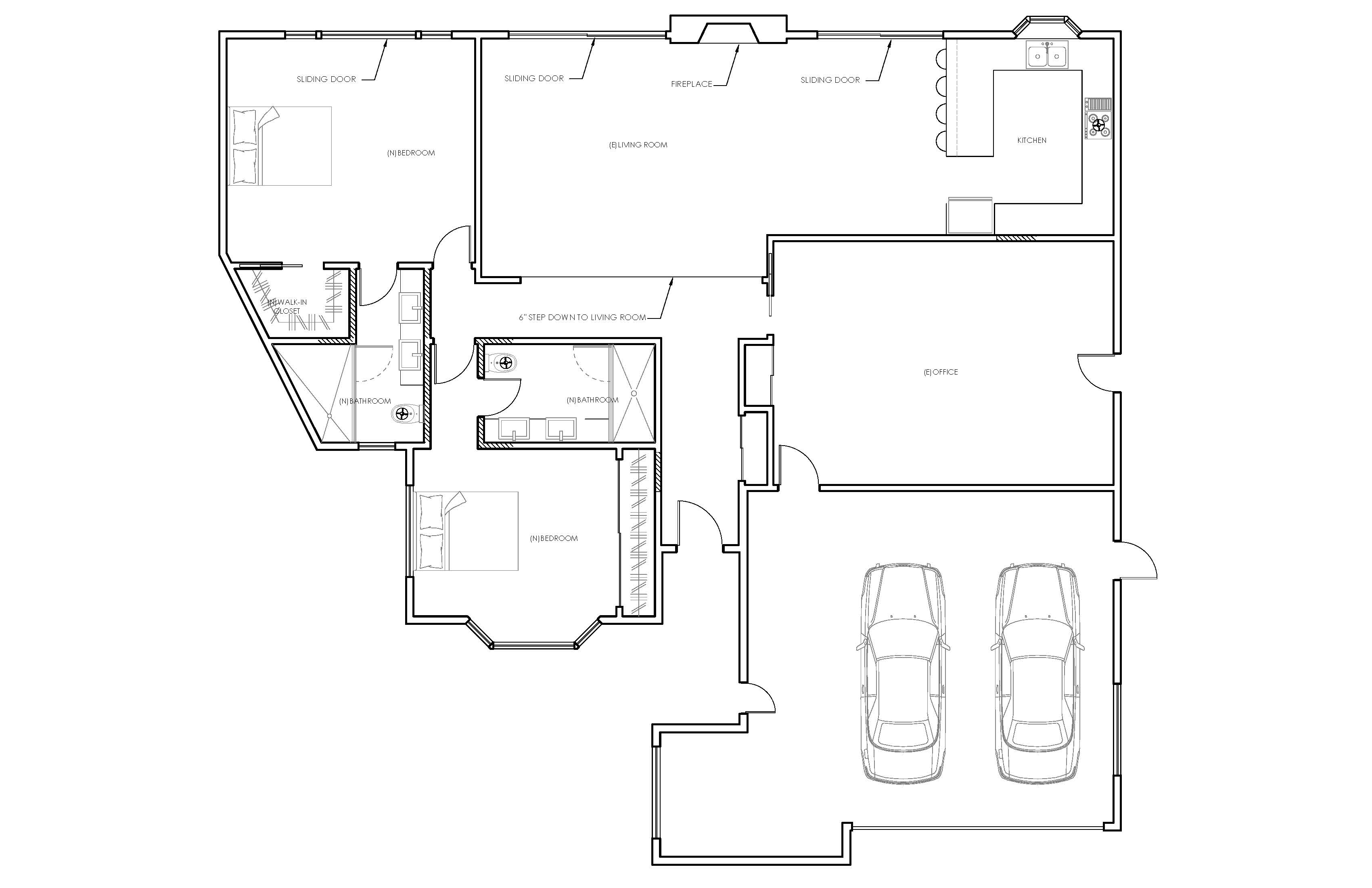
convert this floor plan into a realistic isometric 3d view of a full house show the space from an elevated angle with furniture walls and details visible modern furniture and material tile in bathrooms laminate flooring bedrooms and kitchen concrete garage floor concrete pavers outside the house use the same furniture as shows on the plan do not change the orientation of the floorplan