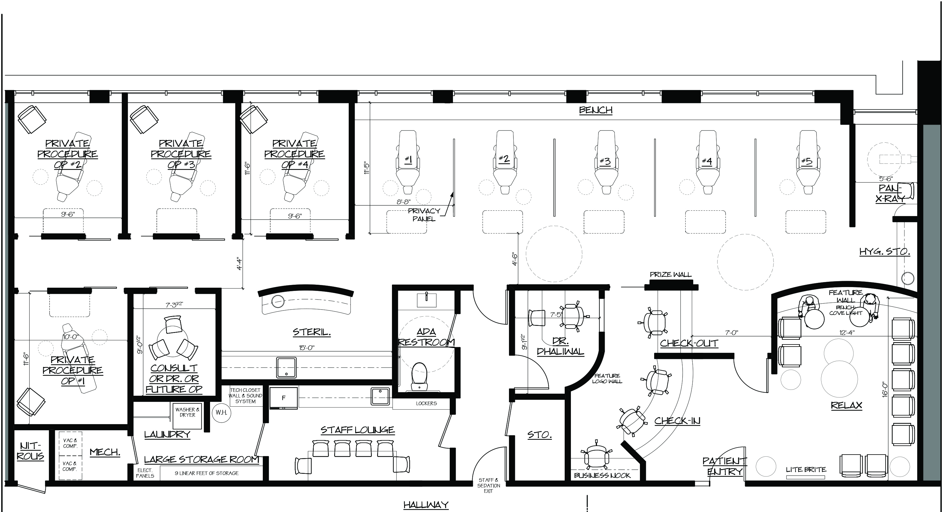
convert this floor plan into a realistic isometric 3d view of a full house show the space from an elevated angle with furniture walls and details visible create an isometric floor plan keep everything in tact add light wood floors throughout use the same furniture as shows on the plan do not change the orientation of the floorplan