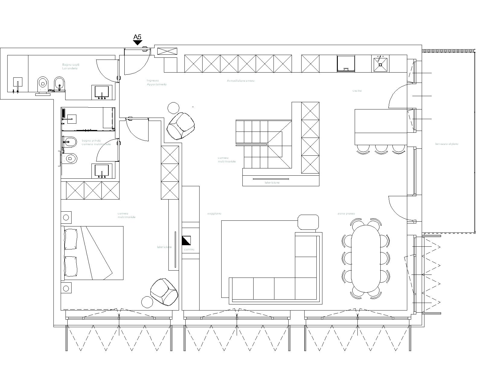
convert this floor plan into a realistic isometric 3d view of a full house show the space from an elevated angle with furniture walls and details visible https r2 archsynth com userfiles 3f44svdr7aoeq6nt1b03oppdlma2 generations teuiudtgunijdt kays1w use the same furniture as shows on the plan do not change the orientation of the floorplan