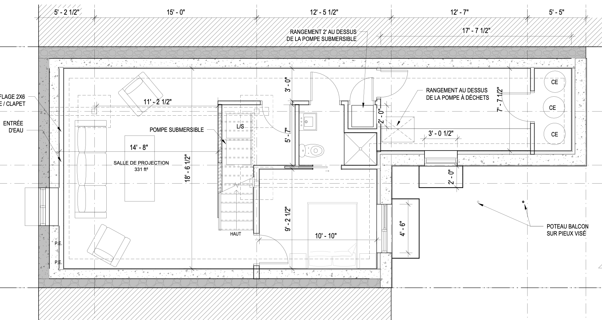
convert this floor plan into a architectural isometric 3d view of a full house show the space from an elevated angle with furniture walls and details visible make sure that all element are in a logic place use the same furniture as shows on the plan do not change the orientation of the floorplan