archsynth
Sign Up
Open main menu
Image to 3d model
Compare
Testimonials
Contact us
Log in
→
Signup
Archsynth generation
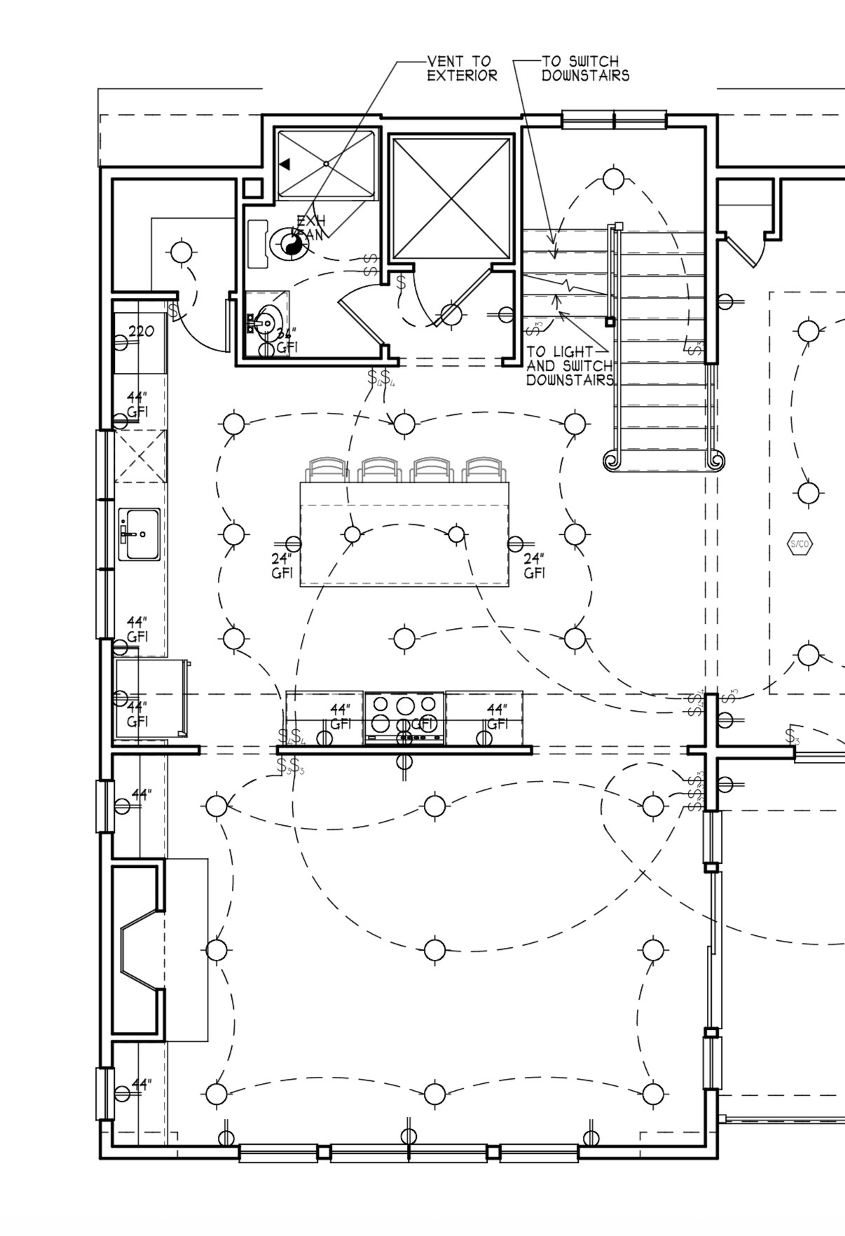
Input image
Copy Prompt
this is the floor plan of our kitchen we want a 3d rendering white inset cabinets with white oak center island
Maintain Colors (Precision)
strength 75
seed 7054
Start Creating Renders Now
Related Posts
Start Creating Renders Now
View more