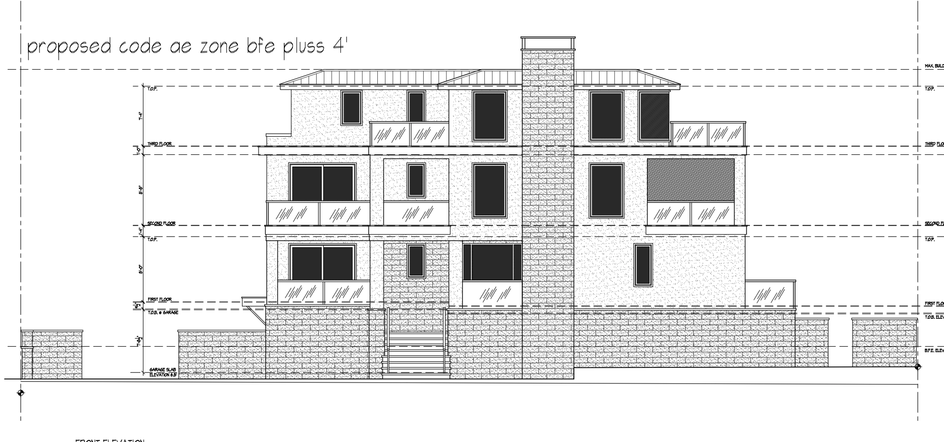
modern luxury beach house black windows black roof glass railing