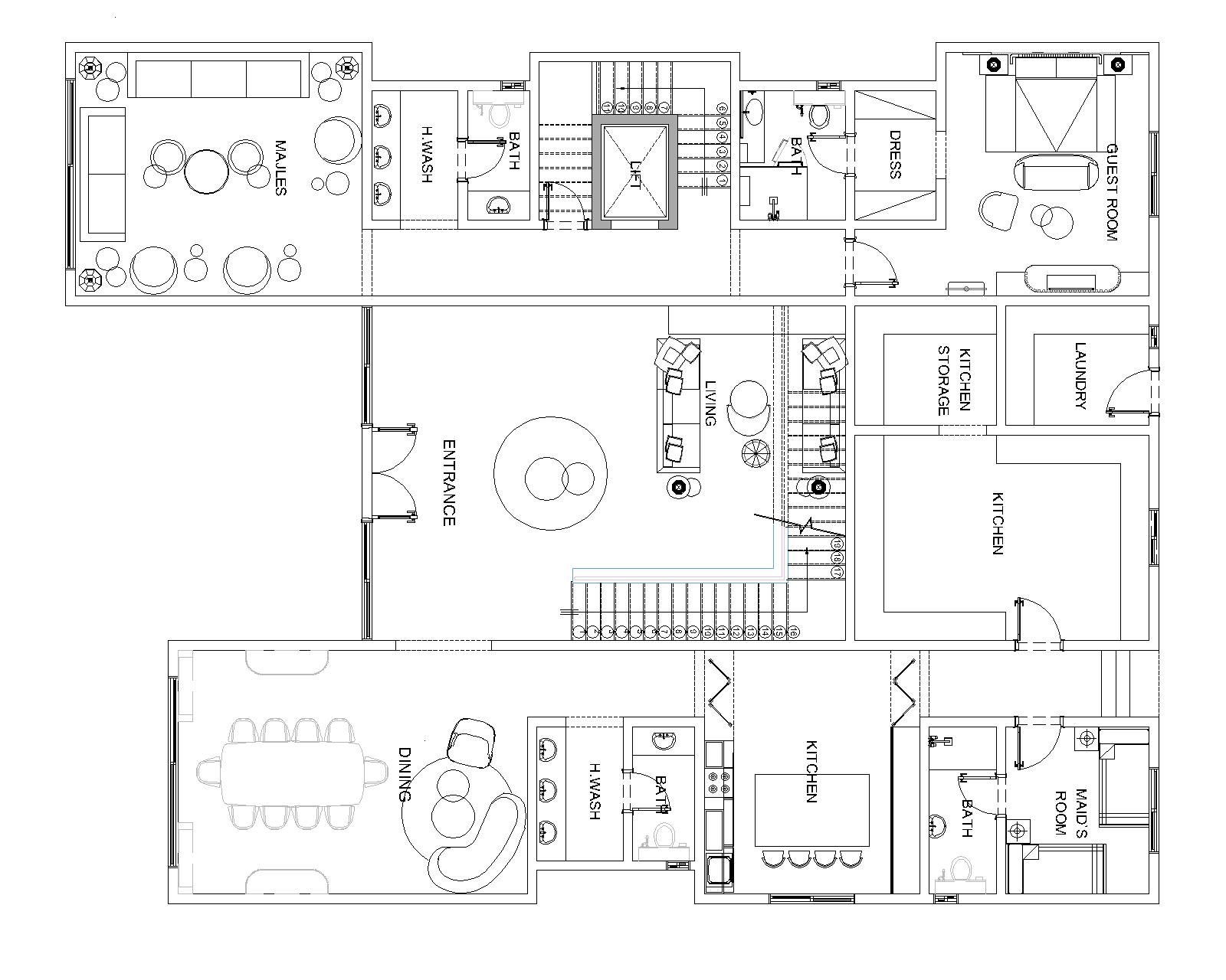
project contemporary luxury villa with double height central space the villa is based on a rectangular footprint of approx 24 35 meters wide front by 18 00 meters deep with clean massing and modern architectural expression the design must feature a central double height volume at the main entrance reaching up to 9 0 meters in total height while the rest of the villa remains two story ground first floor design must strictly follow the following guidelines architectural style pure contemporary luxury with clean lines and rectangular volumes no balconies no arches no classical decoration flat roof with simple parapets elevation design the front fa ade must have a symmetrical composition with a vertical full height glass feature at the center aligned with the main entrance and double height living room the front glass bay should be framed with thin dark bronze aluminum mullions height 7 5m width 1 2 1 5m all other windows should be vertical slit style consistent in rhythm and proportion avoid horizontal ribbon windows or large square openings materials use ivory travertine stone as the main cladding horizontal slabs use smooth warm beige stucco or microcement for secondary wall surfaces dark bronze aluminum for window frames fins and vertical reveals main door should be a large timber pivot door approx 1 8 2 2m wide centered under the glass bay lighting night version warm indirect led lighting 2700k 3000k integrated under roof parapet edges and around the main entry wall washers to illuminate the central vertical glass bay uplights for palm trees entry landscape floating travertine steps lead to the entrance a shallow reflecting water feature should be placed in front of the glass bay to enhance visual luxury minimal modern landscaping 2 3 tall tropical palm trees desert grasses like pennisetum white gravel and large stepping stones elevations front south central double height glass symmetrical composition slit windows on both sides left right sides rhythm of vertical windows matching the internal plan bedrooms corridors rear north larger picture windows for garden views but no balconies or terraces all facades must be coherent and minimal maximum overall height 9 0 meters all materials must be matte or low gloss finishes no reflective surfaces except for glass and water required deliverables 4 elevation drawings front rear sides 2 rendered perspectives one daytime one night with lighting close up of the entry showing material detail stone timber aluminum apply approximate floor plan scale and proportions based on attached layout hard constraints must follow strictly no balconies no arches no classical elements vertical window language only central double height space only flat roof with parapet max height 9 0m