archsynth
Sign Up
Open main menu
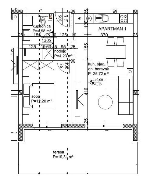
Image to 3d model
Compare
Testimonials
Contact us
Log in
→
Signup
Archsynth generation
Input image
Copy Prompt
floorplan to render
Freestyle
strength 75
seed 2634
Start Creating Renders Now
Related Posts
Start Creating Renders Now
View more