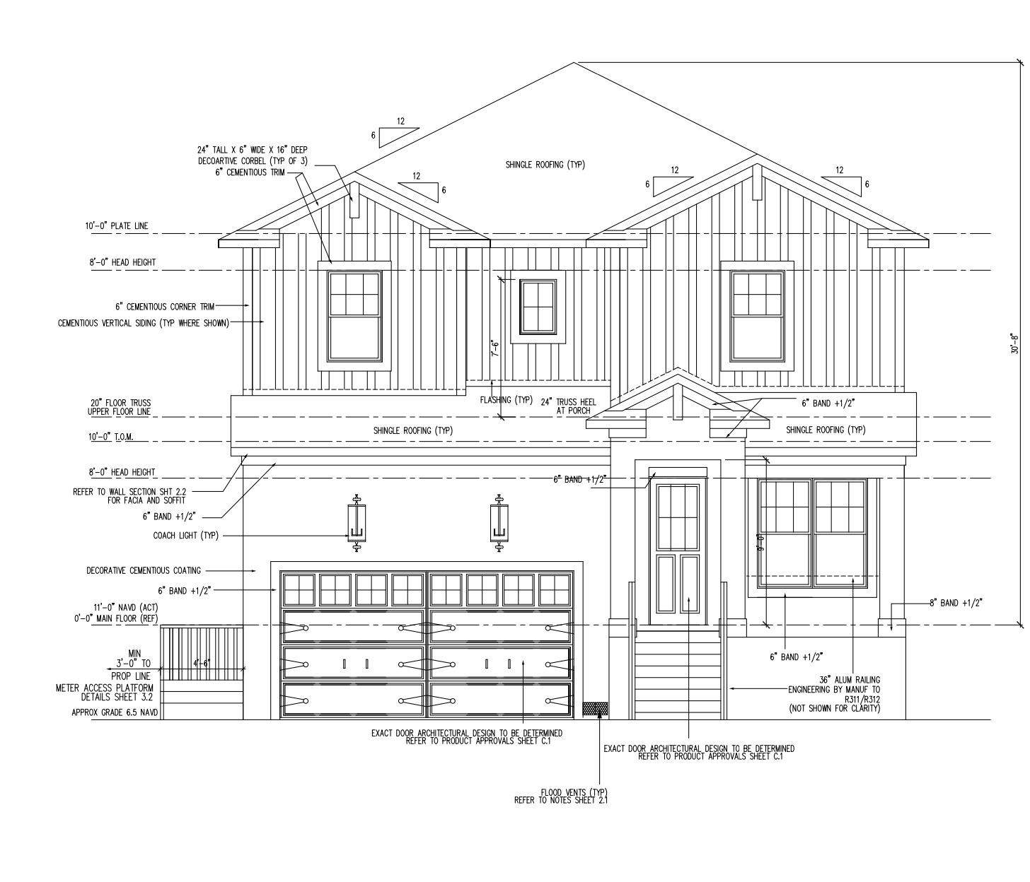
use these architectural drawings to create a front elevation rendering color should be a sage green with a warm white trim garage door to be a coastal style with windows at the top and the same color as the trim front door to be a taupe color first floor to be stucco second floor board and batten vertical siding