archsynth
Sign Up
Open main menu
Image to 3d model
Compare
Testimonials
Contact us
Log in
→
Signup
Archsynth generation
Input image
Copy Prompt
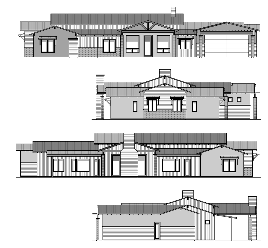
3d rendering based on the 4 elevations shown roof is to be a rusted metal brick to be a brown color vertical siding to have rust patina beams and posts at porches to be rusted brown color architecture
by Words
strength 75
seed 4596
Start Creating Renders Now
Related Posts
Start Creating Renders Now
View more