archsynth
Sign Up
Open main menu
Image to 3d model
Compare
Testimonials
Contact us
Log in
→
Signup
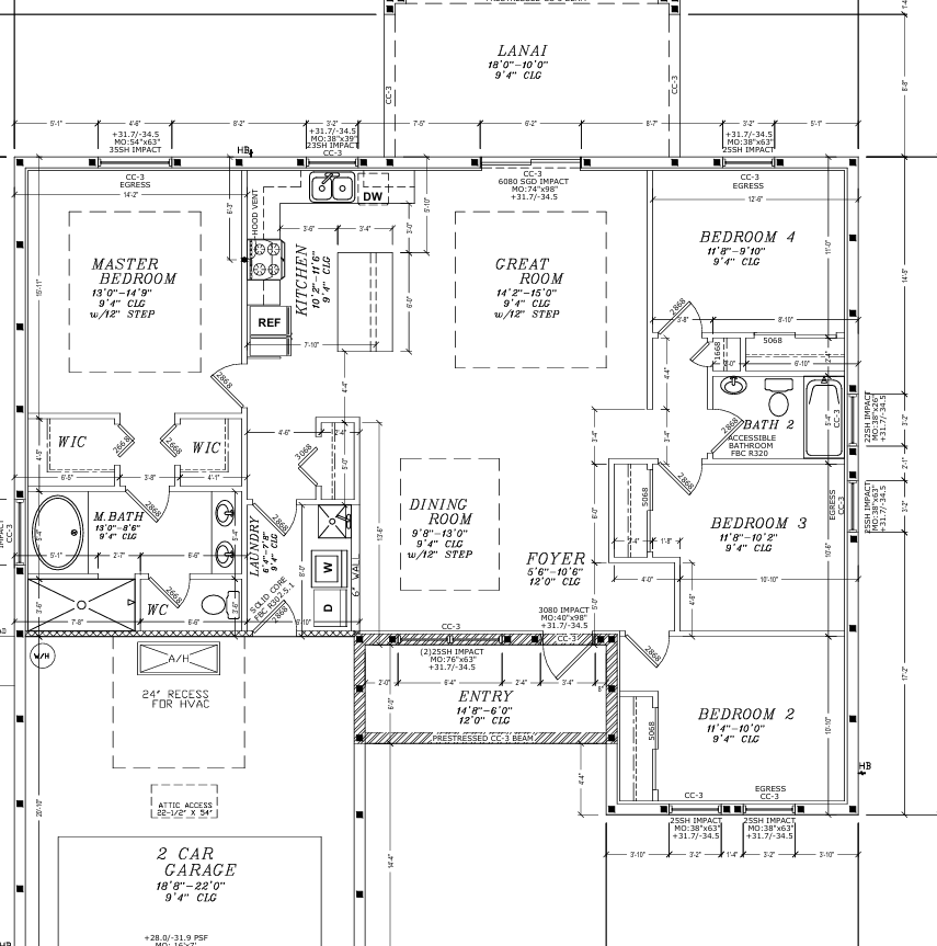
Archsynth generation
Input image
Copy Prompt
create 2d rendering of floor plan with room dimensions for real estate flyer architecture
by Words
strength 75
seed 397
Start Creating Renders Now
Related Posts
Start Creating Renders Now
View more