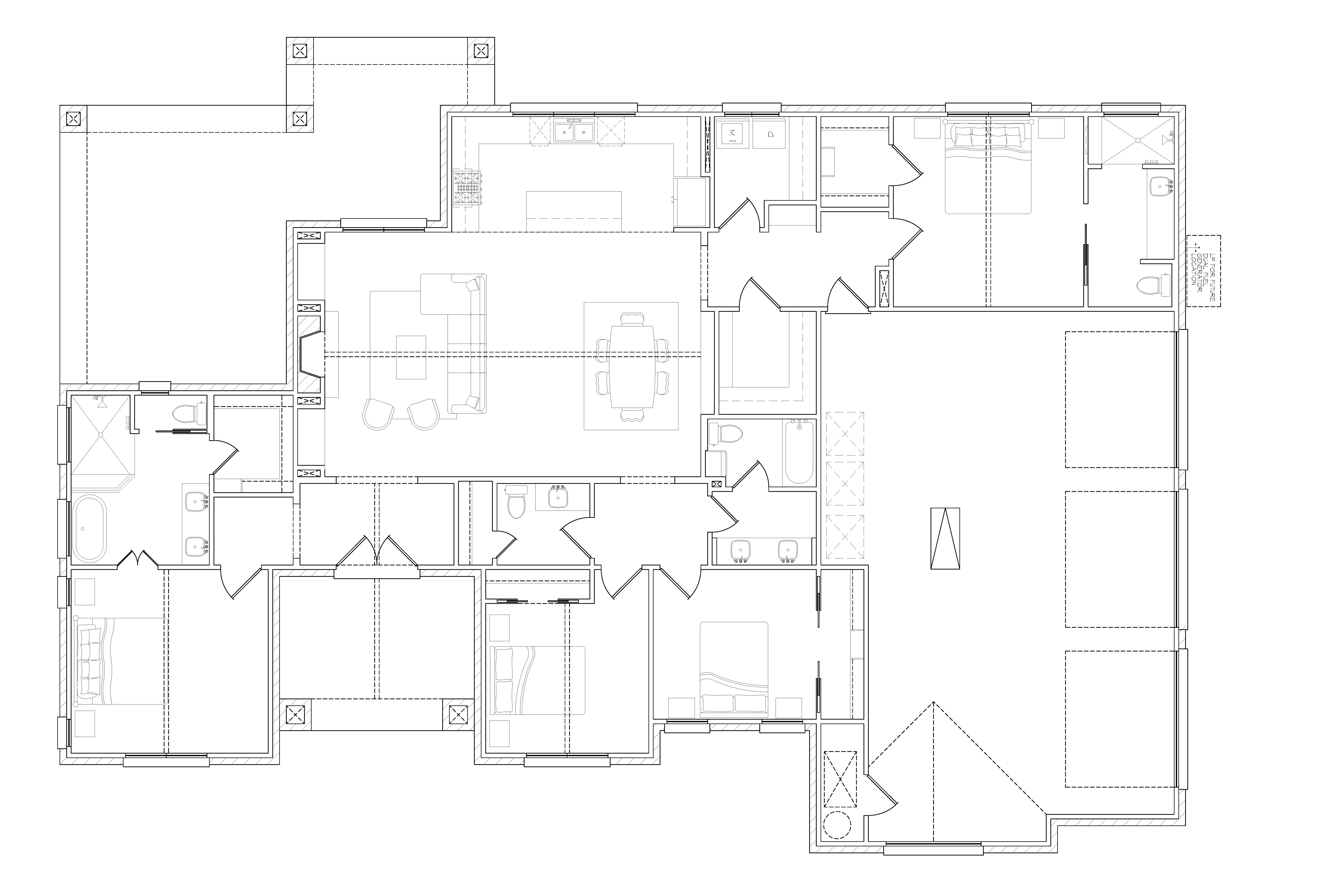
this is the floor plan of a home create a full color marketing isometric for advertising purposes do not add any furniture appliances or fixtures that is not currently illustrated