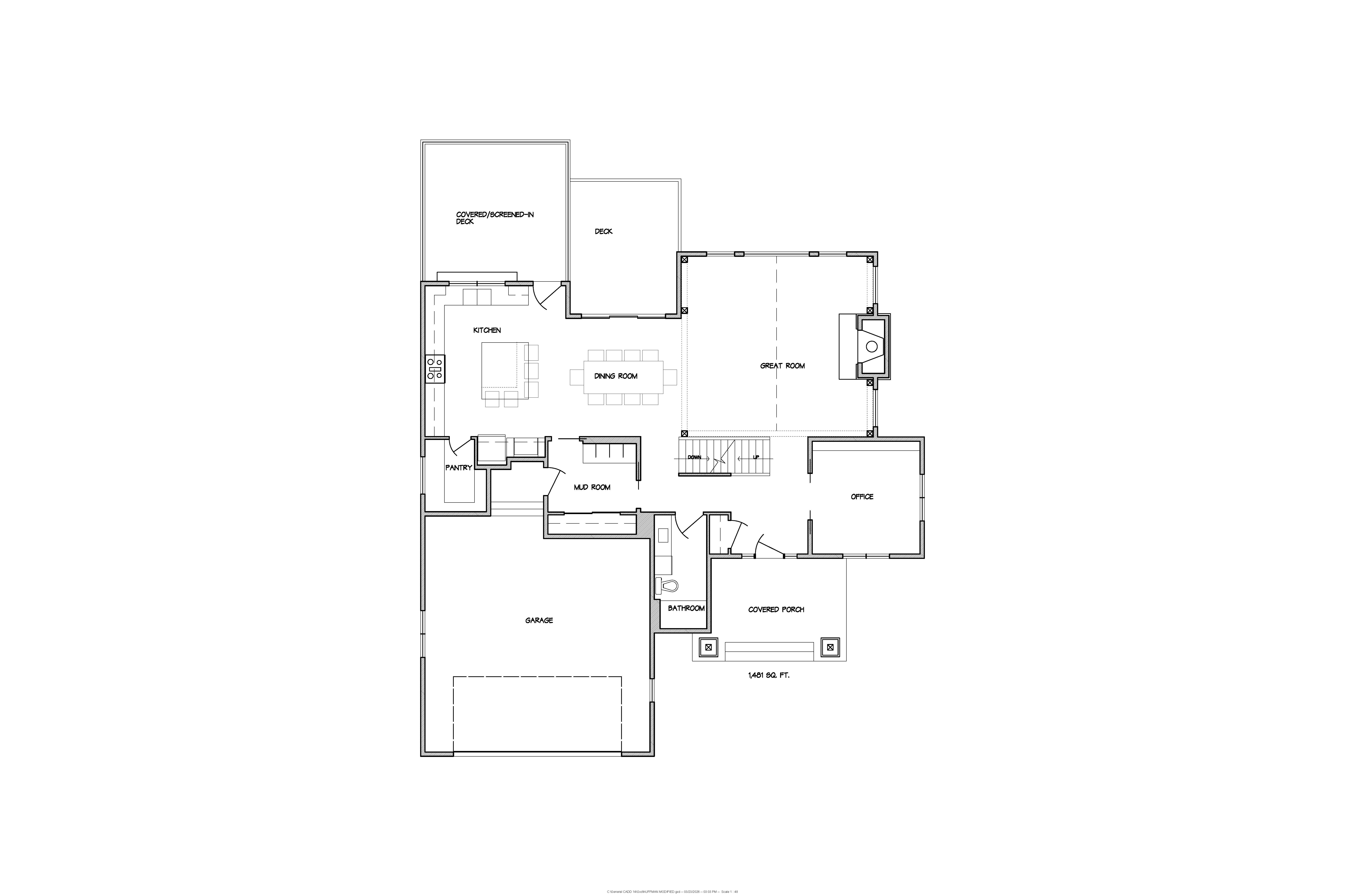
show colored iso drawing in sketch form of the floor plan only