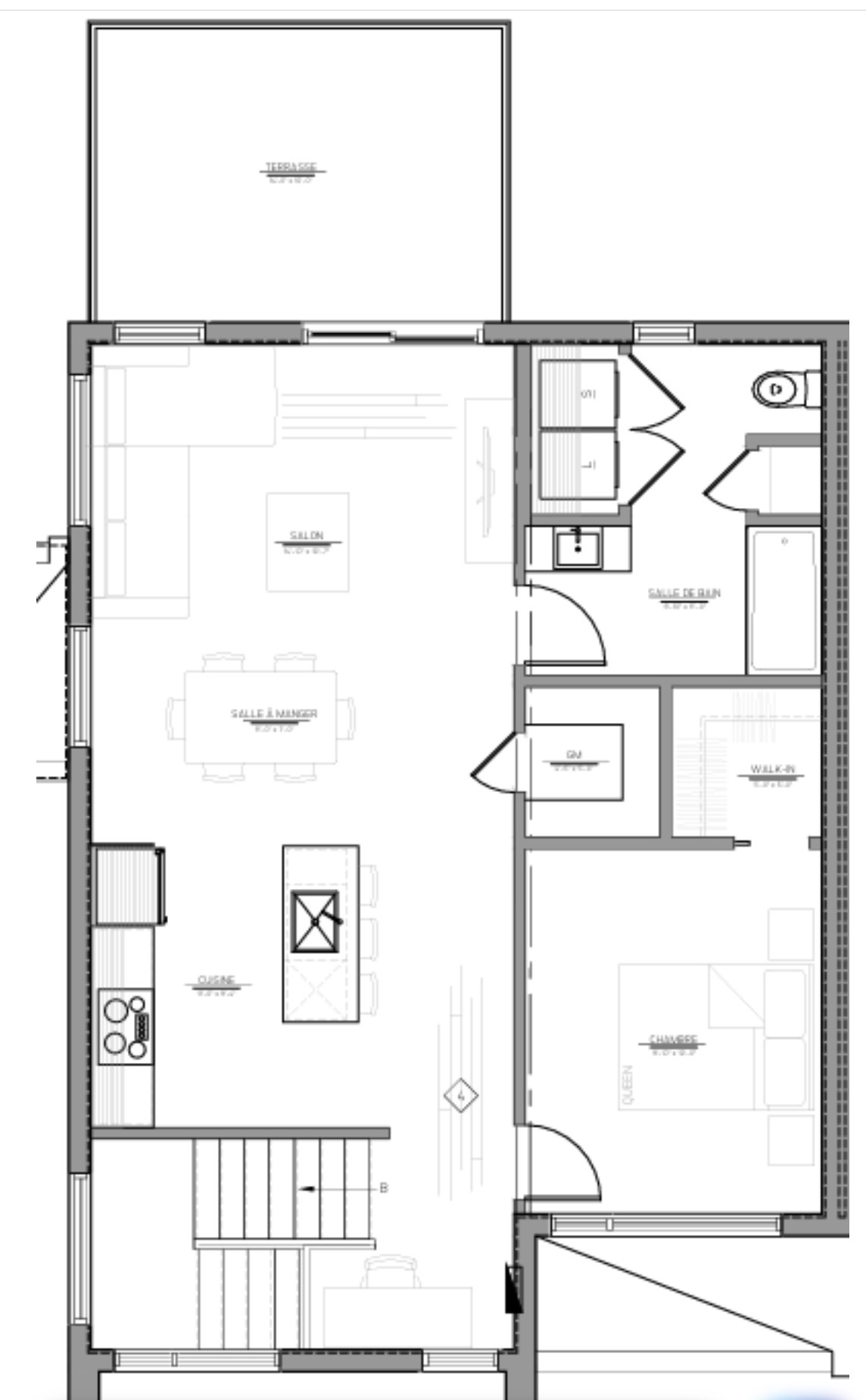
convert this floor plan into a realistic isometric 3d view of a full house show the space from an elevated angle with furniture walls and details visible minimalist decor scandinavian style flooring in wood sofa beige bedding white and beige wood flooring in bathroom remove the second cabinet in the bathroom use the same furniture as shows on the plan do not change the orientation of the floorplan