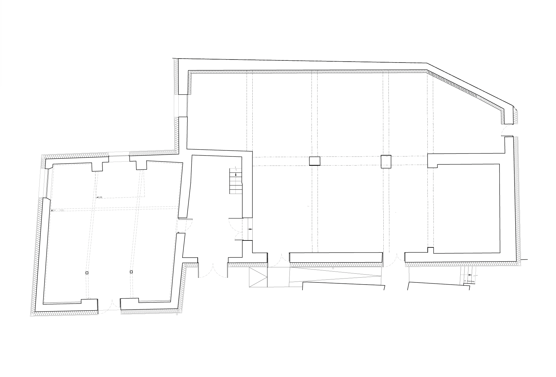
ecological hub with lab space exhibition space and observation space terrace off of small rectangle building small rectangle building designed as lab large format windows along the top wall of the larger building and exhibition space on the bottom half of big building make these descriptions a floorplan