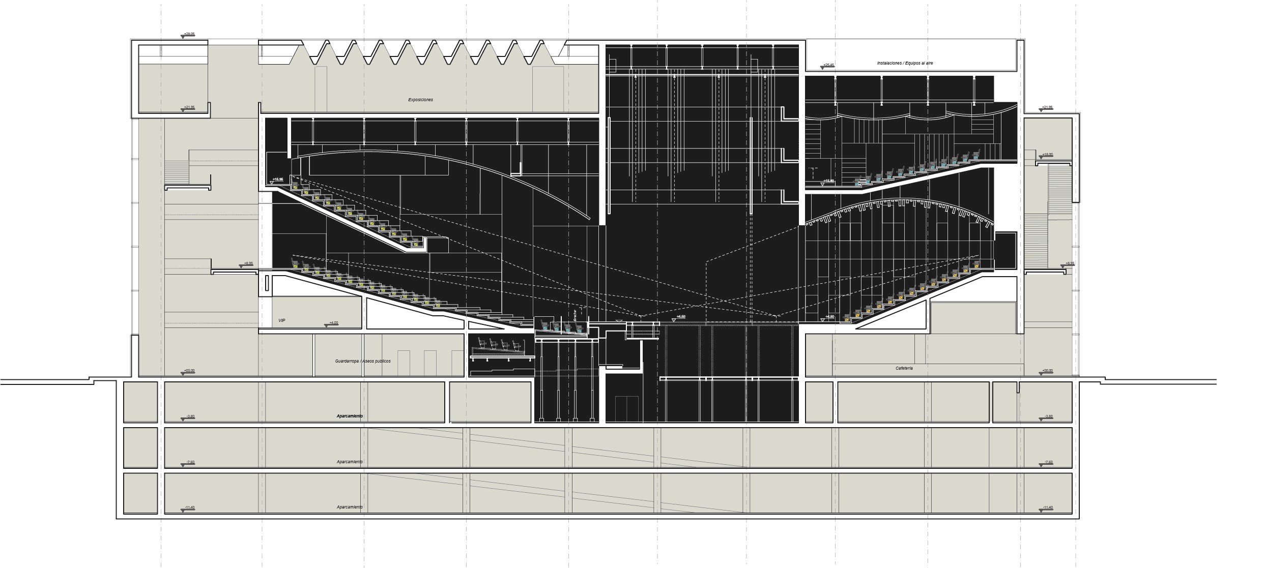
detail shot transform this architectural section extracted from an autocad drawing into a highly detailed and realistic visual representation the original cad uses two colors black for the theater volume and green for the rest of the program recreate the section exactly as drawn preserving all lines geometry proportions and details with total accuracy present the image in the style of an architectural competition rendering as shown in the reference example pure white background realistic palms with a soft watercolor like or natural rendering style scaled human figures placed naturally to bring the section to life interior spaces should have soft shadows to give depth and clarity green program areas non theater should appear with light materials white surfaces wood or glass textures the theater volume black in the cad must be shown in a dense solid material like concrete or another dark opaque finish show floors walls openings and stairs exactly as they appear in the original cad drawing do not alter the geometry or proportions the drawing must be completely faithful to the original cad section using a clean elegant and technical style as if it were a conceptual section for an architectural competition board use the same framing scale and layout