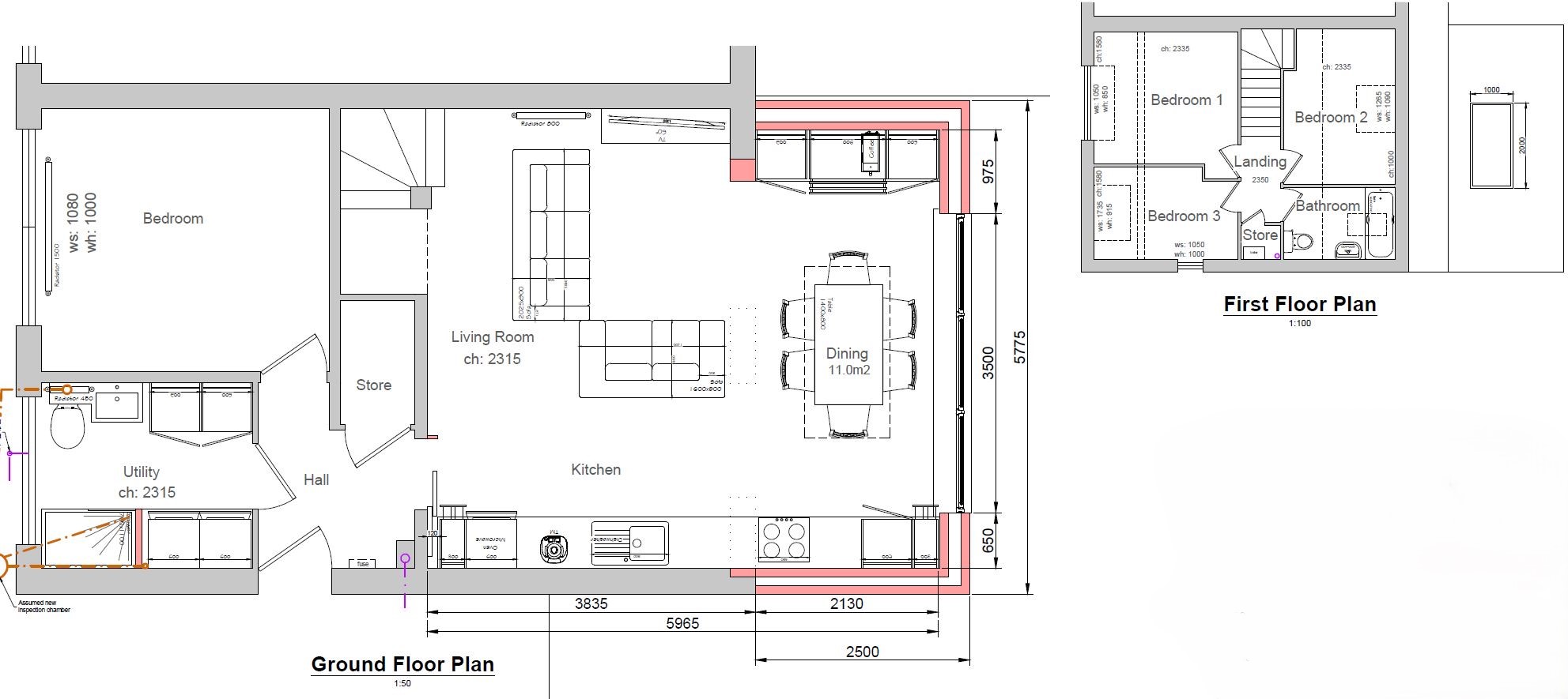
convert this floor plan into a realistic isometric 3d view of a full house show the space from an elevated angle with furniture walls and details visible create an isometric architectural view from the provided autocad drawing the drawing contains two plans ground floor plan scale 1 50 and first floor plan scale 1 100 both plans must be displayed as isometric plans at the same visual size for comparison important requirements do not change the layout in any way all walls rooms furniture doors and window openings must remain exactly as shown in the original plan preserve the exact position dimensions and arrangement of all elements wall representation grey hatched walls existing walls red hatched walls proposed extension walls proposed walls represent a cavity wall construction block inner leaf brick outer leaf visual style clean architectural isometric floor plan style maintain clear differentiation between existing and proposed walls furniture and fixtures should remain simple architectural symbols matching the plan no redesign no reinterpretation no added elements the final output should be a precise isometric representation of both plans exactly as drawn only transformed from 2d plan to 3d isometric view use the same furniture as shows on the plan do not change the orientation of the floorplan