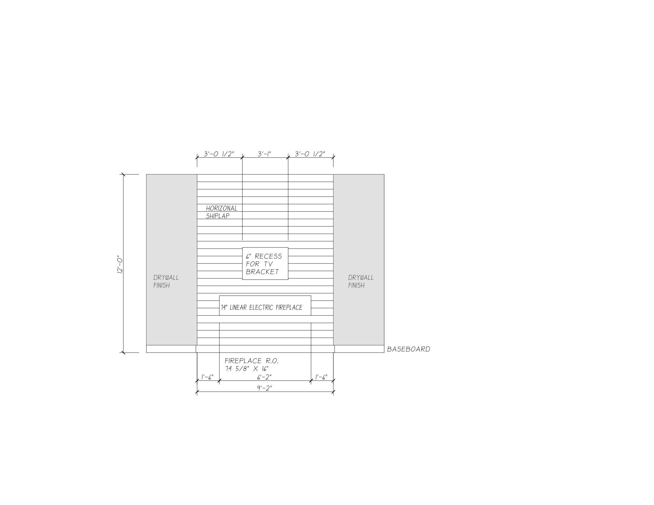
generate a wall feature that is 16 wide and 10 high the center section is 9 2 wide and 10 high and protrudes 6 the center section has a 74 wide and 16 high linear electric fireplace that is 30 above the floor show an 80 tv with a beach scene centered over the electric fireplace with 12 from the top of the fireplace to the bottom of the tv the center section that protrudes out 6 will have 6 horizonal shiplap boards painted white the side walls will be drywall finish painted light gray there is a 6 white painted baseboard across the entire 16 wall