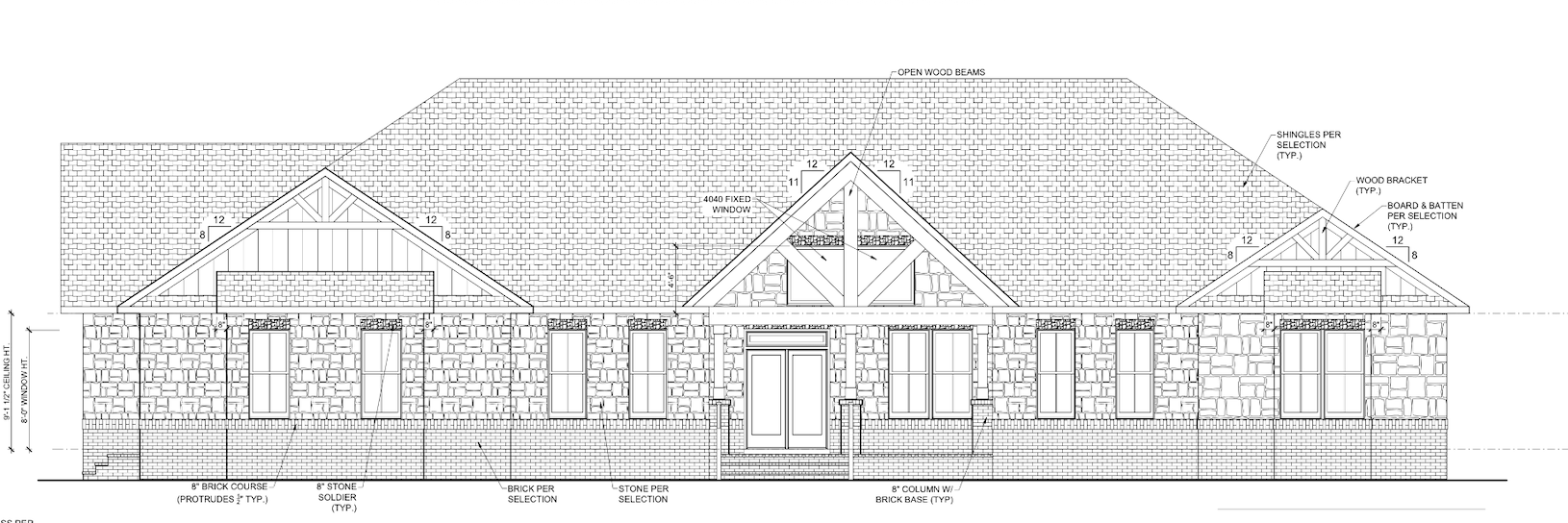
apply materials only to the correct regions primary wall cladding monotone limestone apply the provided creamy off white limestone swatch with matching light mortar to all main wall fields shown as stone on this elevation the large irregular block pattern across the fa ade keep it monotone with gentle natural variation no high contrast mortar no yellow orange cast brick base water table the lower band shown as brick the running brick course across the bottom should be warm light greige taupe brick subtle understated low contrast so stone remains primary any brick column bases noted brick base typ should match this same brick gable infill cladding board batten in the gable triangles where the drawing indicates vertical boards apply smooth board batten in the same warm off white tone as the hardie trim selection matte finish very subtle vertical shadow lines trim fascia soffits columns all trim elements fascia soffits corner boards window door trim columns in the warm off white greige shown on the selections board hardieplank trim color keep trim clean and crisp no texture bleeding from stone roof shingles apply dark charcoal graphite shingles per selections matte fine texture consistent across all roof planes no exaggerated patterning exposed gable truss wood beams for the open wood beams truss elements in the center gable and any wood brackets apply the rich stained wood tone from the wood swatch medium dark brown satin matte keep grain subtle and scaled appropriately windows front door window frames matte black window color front door black to match concept glass neutral minimal reflection do not add dramatic reflections gutters downspouts apply the gutter color from the concept board warm taupe bronze leaning neutral subtle satin