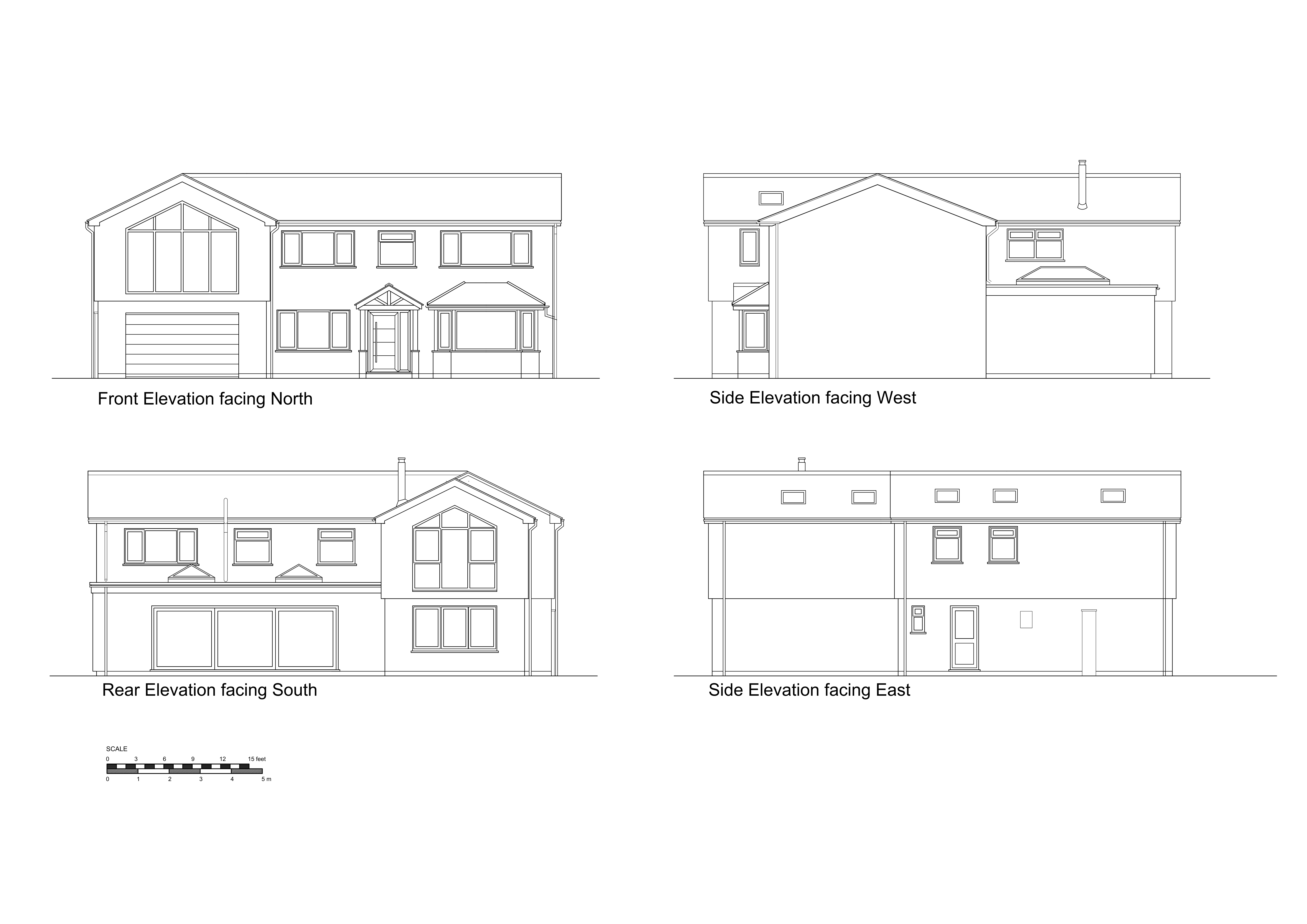
exterior shot keep the same building shape as the uploaded image