archsynth
Sign Up
Open main menu
Image to 3d model
Compare
Testimonials
Contact us
Log in
→
Signup
Archsynth generation
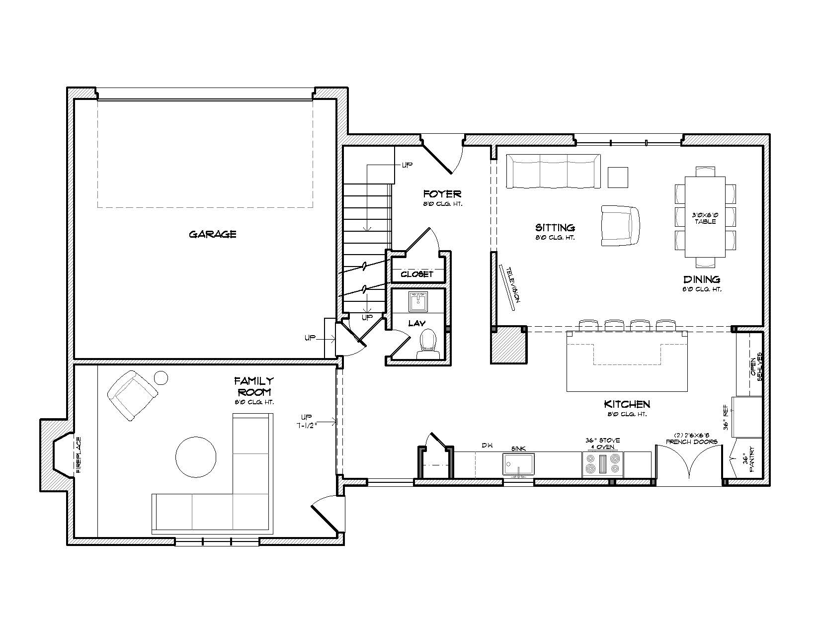
Input image
Copy Prompt
take this black and white 2d floor plan and enhance it so it looks hand drawn use black lines keep the hatch patterns extend the lines past at the corners to look hand drawn add shadows for depth use chartpak colored markers
Freestyle
strength 75
seed 10
Start Creating Renders Now
Related Posts
Start Creating Renders Now
View more