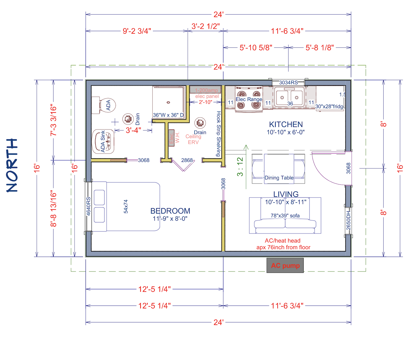
convert this floor plan into a modern isometric 3d view of a full house show the space from an elevated angle with furniture walls and details visible high quality 3d isometric cutaway of a modern house photorealistic textures oak wood flooring concrete walls and contemporary furniture natural daylighting with soft shadows clear architectural visualization 8k resolution use the same furniture as shows on the plan do not change the orientation of the floorplan