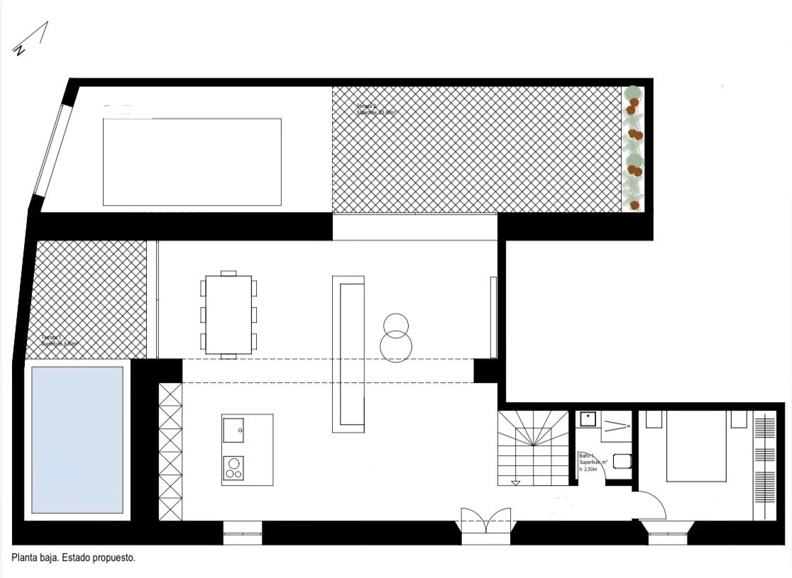
convert this floor plan into a realistic isometric 3d view of a full house show the space from an elevated angle with furniture walls and details visible modern luxury house floor plan isometric render clean architecture realistic materials neutral tones wood and beige palette soft natural lighting minimalist furniture high quality architectural visualization use the same furniture as shows on the plan do not change the orientation of the floorplan