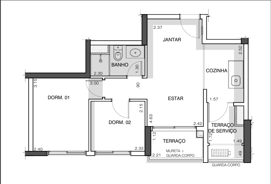
generate 2d floorplan in black and white with measurements and in scale dorm 1 bedroom 1 315 cm x 240 cm dorm 2 bedroom 2 is 215 cm x 233 cm banho bathroom is 130 cm x 230 cm jantar estar terraco living dining area is total 575 cm x 237 cm cozinha kitchen is 252 cm x 157 cm please generate 2d floorplan according