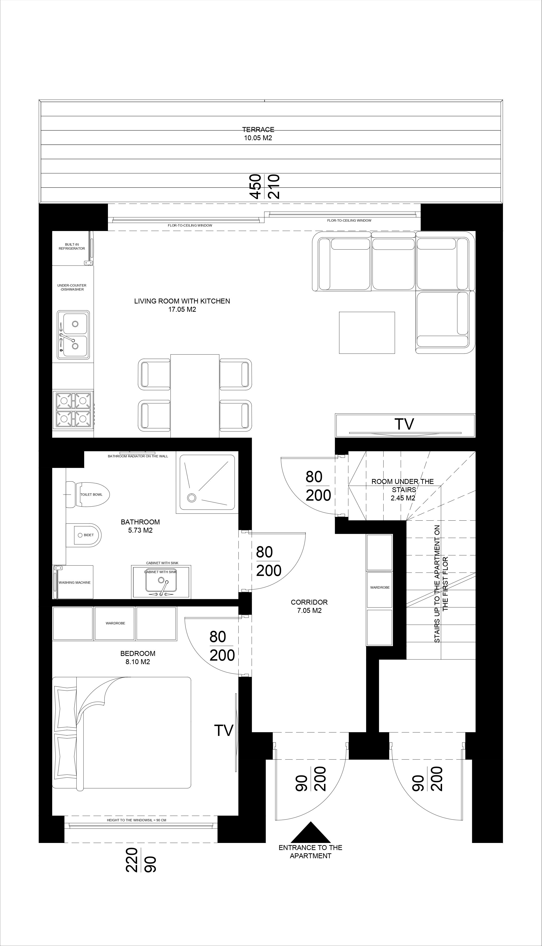
convert this floor plan into a realistic isometric 3d view of a full house show the space from an elevated angle with furniture walls and details visible view from a different angle use the same furniture as shows on the plan do not change the orientation of the floorplan