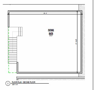
keep image as is just make dimensions and wording more readable using english