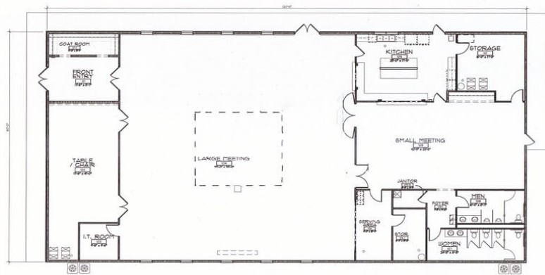
project a 1 story multi purpose building 18 feet high to the eave the building is about 4000 sf the exterior of the building should have a covered drive up area for dropping off people the building is located on a lot that is 70 feet by 128 feet the lot is perpendicular to the main street and should have parking in the front and parking in the rear with landscaping add cars people and a suburban background the exterior design is to be modern make the building small