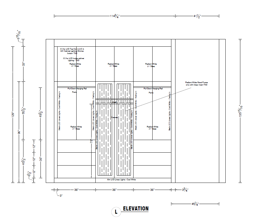
this elevation drawing provides a technical blueprint for a custom radiant white storage system likely for a high end walk in closet or dressing room key dimensions overall width approximately about total height just over sectional layout three wide main modules plus a wide end unit features and hardware storage specialized includes pull down hanging rails for pants a dedicated belt rack and a tall section for long dresses integrated lighting features built in blade led linear lights cool white in the vertical partitions along with toe kick and internal cabinet lighting materials specified in a radiant white finish with a standard depth of the far right section is a wood frame designed for a glass insert electrical notes power access designated locations for cabinet lighting dimmers and switches eo electrical outlets lighting type cool white led strips are integrated throughout for visibility and aesthetics