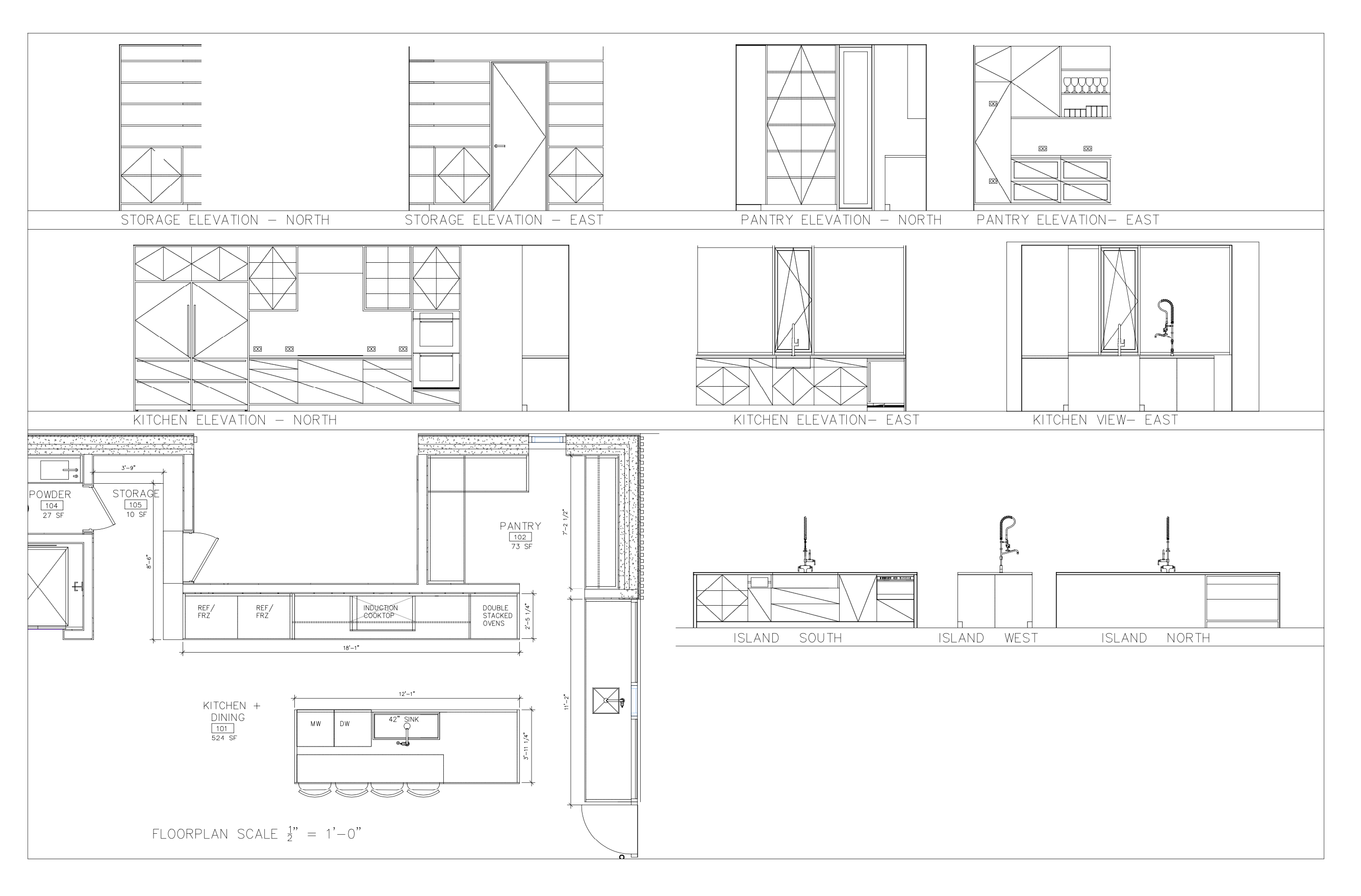
serene and natural on a lake in vermont kitchen cabinets are ash vertical grain with a natural stain countertop is a white gray marble with a full height backsplash over under panel ready refrigerator freezer double stacked ovens stainless steel 42 induction cooktop with hidden hood stainless steel potfiller over cooktop hidden integrated pulls on cabinetry wide and long plank ash floor natural stain running left to right