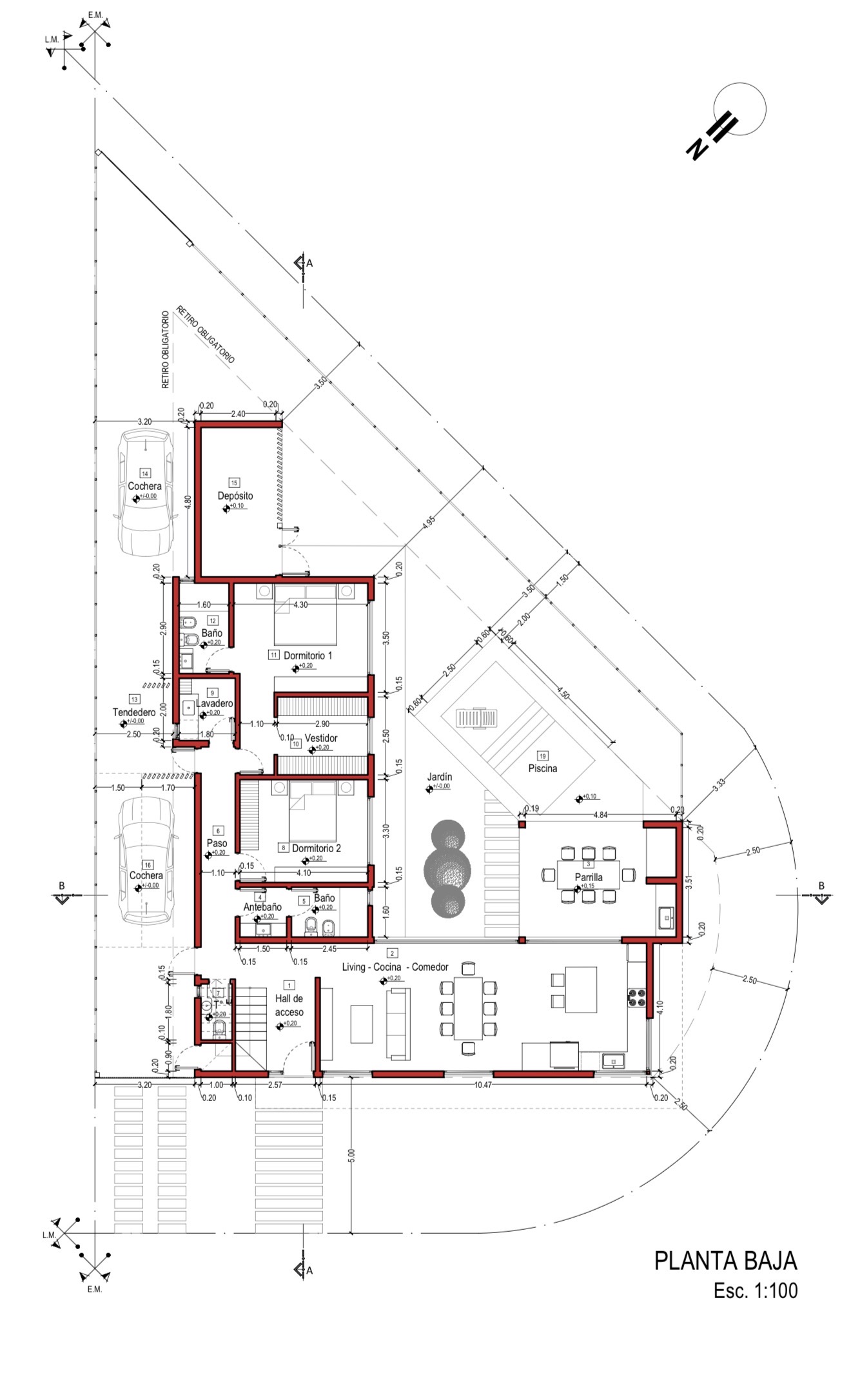
modify the existing architectural design by adding a second floor new upper level relocate the two spaces labeled dormitorio from the ground floor to the new second floor keep both dormitorios as private bedrooms maintaining similar proportions and layout logic if possible on the ground floor remove the space labeled dep sito completely use the freed space on the ground floor to create a larger more open area connected to a swimming pool piscina the piscina should feel integrated with the living space with a clean and modern indoor outdoor relationship maintain the original architectural style materials and overall design language of the project do not alter other spaces unless necessary for circulation or structural logic ensure proper vertical circulation stairs is added in a logical and efficient position keep all other labeled areas intact and consistent with the original design