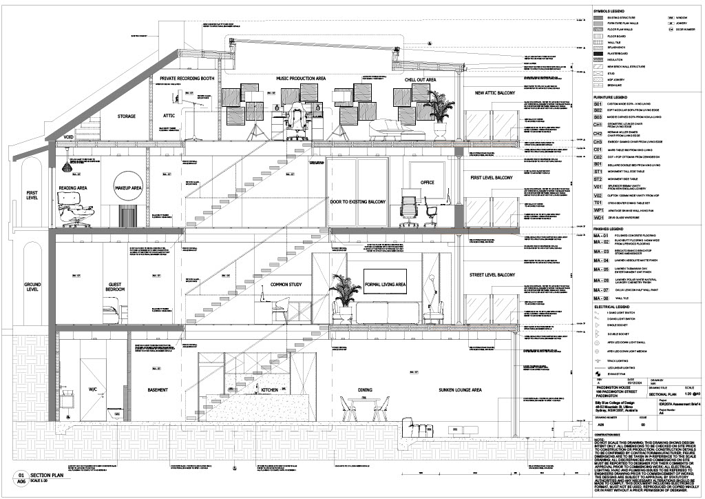
sectional cut of a contemporary renovation of a heritage terrace house in paddington showing four levels basement ground floor first floor and attic rendered in realistic architectural style with fine detailing light filled interior spaces and integration of old and new materials