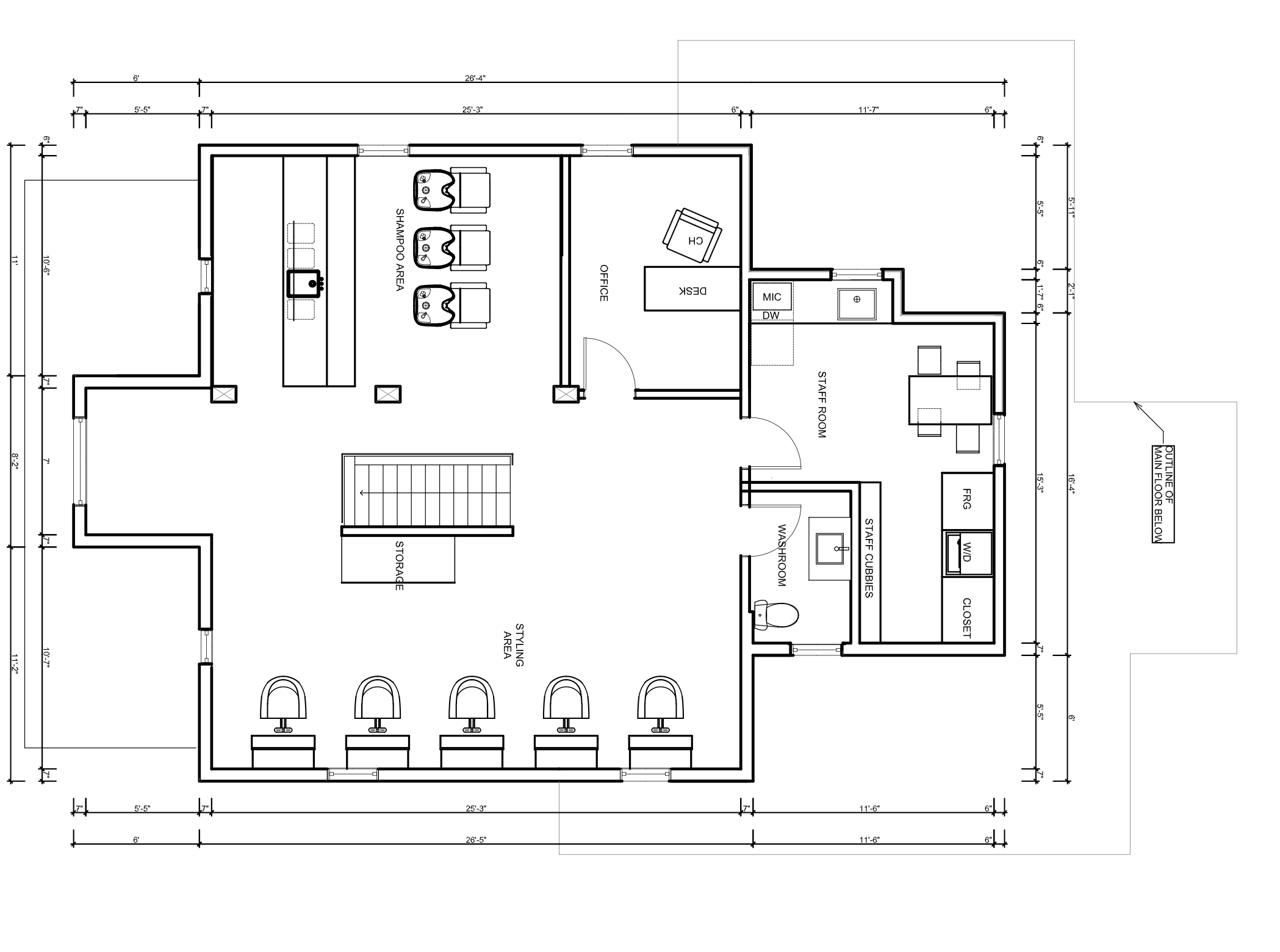
convert this floor plan into a realistic isometric 3d view of a full house show the space from an elevated angle with furniture walls and details visible create a salon design focused heavily on furniture cabinetry and styling create a render visual of the floor plane in a modern minimalistic neutral colour furniture and cabinetry the image should be high resolution and relay high end cabinetry use the same furniture as shows on the plan do not change the orientation of the floorplan